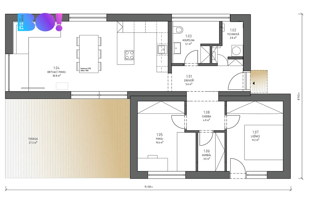
Prodej - dům/vila, 73 m²
Moderní dřevostavba 3kk, 73m² s pozemkem 528 m². Ludgeřovice okr. Opava
BO!reality Vám exkluzivně nabízí moderní dům místo bytu v centru! Pokud právě hledáte nový byt v novostavbě, ale nechcete platit přemrštěné ceny za pár desítek metrů v centru města – čtěte dál. Tahle nabídka vás totiž překvapí. V Ludgeřovicích, jen 10 minut od Ostravy, na vás čeká moderní dřevostavba 3+kk o užitné ploše 73 m², doplněná o prostornou terasu 27 m² a pozemek 528 m². Dům je postaven s důrazem na kvalitu a úsporu – fasáda z kanadského modřínu, hliníková okna s trojsklem, HS portál, podlahové vytápění, rekuperace, klimatizace a příprava pro fotovoltaiku. ✅ Zkolaudováno – můžete se ihned nastěhovat. ✅ Nízké provozní náklady díky moderním technologiím. ✅ Klidná lokalita, škola, školka i obchod pár minut pěšky. ✅ Výborná dostupnost do Ostravy. Tento dům představuje chytrou alternativu k drahým bytům v centru města – získáte vlastní pozemek, prostor, soukromí a moderní nadstandard bez kompromisů. Ať už hledáte nový domov nebo bezpečnou investici, tohle je nabídka, která dává smysl. V případě, že Vás tato nabídka zaujala. Rád Vás provedu.


