Prodej - dům/vila, 138 m²
Prodej novostavby roddiného domu 5+kk, 138 m2, Lučina
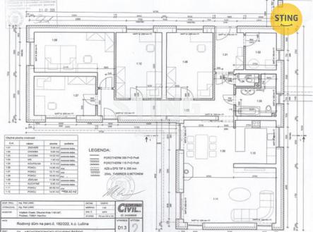
Ve výhradním zastoupení majitele Vám nabízíme k prodeji moderní novostavbu rodinného domu 5+kk v obci Lučina, kolaudovanou na podzim roku 2022. Tento dům splňuje veškeré požadavky na komfortní a úsporné bydlení, energetická náročnost B – velmi úsporný, což vám zajistí minimální provozní náklady a příjemnou pohodu po celý rok. Dům je zděný, zateplený 20 cm izolace a vytápění je řešeno vodním podlahovým topením napájeným tepelným čerpadlem Ivar.Hp Itec Inverter-Total. Atmosféru domova můžete navíc podtrhnout příjemným teplem krbových kamen Nordflam. Dispozice domu Praktická dispozice nabízí dostatek prostoru i pro větší rodinu: • prostorné zádveří s přístupem do technické místnosti, • samostatná toaleta a koupelna s WC, • velkorysý obývací pokoj s kuchyňským koutem a přímým vstupem na zahradu, • čtyři samostatné ložnice přístupné z chodby – dvě z nich mají rovněž vstup na zahradu. Celková užitná plocha domu činí 138,43 m² + zastřešené parkovací stání cca 35 m². Pozemek o výměře 1.130 m² je kompletně oplocený, včetně elektrické brány. K domu náleží také velká terasa o rozloze cca 70 m², ideální k odpočinku i společnému posezení s přáteli. Dům disponuje 3 velkými HS portály a na většině oken jsou instalovány venkovní žaluzie. Dešťová voda je svedena do retenční nádrže o objemu 6 m³ a následně do vsaku, odpad je napojen na obecní kanalizaci. Občanská vybavenost a lokalita Lokalita nabízí vše, co potřebujete pro pohodlný život: • 100 m restaurace, • 400 m autobusová zastávka, škola, školka, dětské hřiště, pošta, Obecní úřad, • 500 m Žermanická přehrada, • 600 m potraviny a další restaurace, • 2,7 km Žermanický park. Skvělá je i dojezdová dostupnost: 10 km Havířov, 12 km Frýdek-Místek, 22 km Český Těšín, 26 km Ostrava. Další výhody Dům je vybaven designovými svítidly, elektrickou bránou a kompletně dokončenou přední částí oplocení. Financování na míru Vám zdarma připraví náš hypoteční specialista. Prodávající si vyhrazuje právo výběru kupujícího. Doporučujeme prohlídku této atraktivní nemovitosti – stojí za to! Pro více informací či sjednání termínu prohlídky mne neváhejte kontaktovat.


