Pronájem - skladovací prostor, 1 700 m²
K pronájmu: Výrobní a skladovací hala 1 700 m² v Lubech u Chebu – připraveno k okamžitému využití
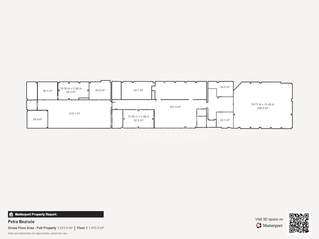
Hledáte velký prostor pro své podnikání v lokalitě s výbornou dopravní dostupností a bez potřeby dalších investic? V areálu v Lubech u Chebu nabízíme k pronájmu prostornou halu o ploše 1 700 m², která je připravena k okamžitému provozu (z toho 1.NP s plochou cca 1400 m² a suterén cca 300 m²). Budova prošla rozsáhlými technickými úpravami a je ideálním řešením pro lehkou výrobu, sklad, logistiku nebo jako základna pro další podnikatelské aktivity. Co objekt nabízí: - Kompletně modernizovaná elektroinstalace a rozvody - Zrekonstruované vytápění (nový kotel na tuhá paliva, připraveno i na tepelné čerpadlo) - Nová plastová okna s izolačními skly - Zateplené stropy - Opravené zázemí pro zaměstnance – šatny, toalety Připojení a energie: - Elektřina: nový přívod, rozvodna s příkonem 3×160 A (sazba C02D) - Voda a kanalizace: nové přípojky, napojení na areálovou čističku - Plyn: možnost opětovného připojení Přístup a doprava: - Přímý vjezd z obecní komunikace - Elektrická vrata (2,94 × 3,3 m) + dvě další vrata na opačných stranách haly - Možnost využití nákladové rampy - Parkovací plocha u objektu (další rozšíření možné) Lokalita s výhodami: - Luby u Chebu – strategická poloha blízko hranic s Německem. Výborná dostupnost: - 25 km do Chebu (napojení na D6 směr Praha) - 18 km k silnici E49 (Magdeburg – Vídeň) Nájemní podmínky: - Měsíční nájemné: 60 000 Kč - Vratná kauce: 120 000 Kč - Zálohy na energie a služby (elektřina, voda): dle spotřeby – bude upřesněno (převod smlouvy na nájemce) Prostor je k dispozici ihned. V případě zájmu o více informací nebo osobní prohlídku nás neváhejte kontaktovat.


