Prodej - dům/vila, 98 m²
Prodej RD BUNGALOV užitná plocha 98.3 m², pozemek 753 m2 v obci LOZA , Plzeň - sever
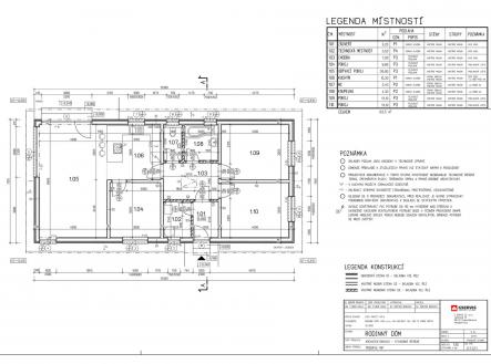
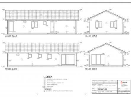
Prodej RD BUNGALOV užitná plocha 98.3 m², pozemek 753 m2 v obci LOZA , Plzeň - sever CENA VČETNĚ POZEMKU Nabídka rodinného bydlení dřevostavby BUNGALOVU , celkem 5 rodinných domů v projektu RODINNÉ DOMY LOZA : 5 bunglalovů velikosti 4 kk užitné plochy 98.3 m2 pozemky o velikosti 726 m2 - 762 m2 V projektu lze realizovat bungalov dvou tvarů - klasický a "L" různých velikostí užitných ploch dle výběru. Součástí kupní ceny je: - pozemek - obvodové příčky, fasáda včetně zateplení - vnitřní příčky, vnitřní omítky - střecha krov dřevěná konstrukce, krytina taška, svody okapy - podhledy - okna s trojskly , dveře vstup plast s IZ trojsky - obklady, dlažba , sanita a zařiz. předměty wc a koupelen - výběr dle standardů projektu - podlahové topení celého, tep.čerpadlo Viessmann (voda - vzduch), - vodovod, odpady městská kanalizace ,vodoměr, připojení domu pro kompletní provoz - elektro, rozvody a kompletace , přípr.pro elekt. rozvody v kuchyní, zásuvka pračky a sušičky, slaboproud NP a 2. NP, zvonek, - venk. úpravy pozemku srovnání terénu bez příprav osevu trávy - oplocení pozemku - přípojky energií voda a elektřina kompl. napojení domu a uvedení do provozu, retenční zádržná nádrž dešť. vody 6m3 - příjezdová komunikace – viz vizualizace situace projektu - nadstandardní klientské změny jsou možné Součástí kupní ceny není : - dveře interiér, podlahová krytina lepený vinyl, dlažba, venkovní okap chodník - tyto položky lze realizovat dle standardů u kvalitních dodavatelů projektu za cenu 300.000 Kč, kdy je tedy cena domu pro kompletní dokončení " na klíč" 7.364.000 Kč včetně DPH Dále v ceně domu není : - kuchyňská linka, krb , krbová kamna , předokenní rolety a jejich příprava – přípr. TV a dat. antény, koaxiál. kabel a TV zásuvky v obýv. pokoji a v pokojích - zabezpečovací zařízení včetně přípravy, klimatizace, rekoperace a další případné technologie - v nadstandardu je možné realizovat přípr. FVE panelů střecha, rekuperace, přípr. a realizaci bezpečnost. systému domu, přípr. pozemku pro osev trávy, realizace zahrady, osazení krbu/krb kamen, výrobu kuchyň linky vč. spotřebičů, klimatizaci, internet dat kabel, a mnoho dalšího - na pozemku lze vybudovat park. stání či garáž, zastavěnost umožňuje využití pozemku pro další drobné stavby Veškerá projektová dokumentace, detailní specifikace použitých materiálů a technologií, katalogy standardů podlah, sanity, obkladů a interiér dveří projektu k náhledu u realitní makléřky či na webu tohoto projektu. Vizualizace a plánky půdorysů jsou orientační - zájemci budou předány přesné plány a specifikace. Velmi nízké provozní náklady domu PENB třídy B - kompletní PENB bude aktualizovat v roce 2026 a bude předán při podpisu smluvní dokumentace. Předpokládáme nižší číslo energetické spotřeby. Kouzelná krajina okolních lesů a přírody, cyklostezky a možnosti sport aktivit i relaxace, blízkost veškeré občan vybavenosti. Dojezd města Plzně cca 15 min , město Dolní Bělá a okolní města 5 min - lékaři ,obchody , školka , škola a další. Možnost financování hypotečním úvěrem 80 – 90 % LVT se zvýhodněnou úrok sazbou.


