Prodej - nájemní dům, 793 m²
Prodej polyfunkční budovy, ulice Vrchlického, Louny
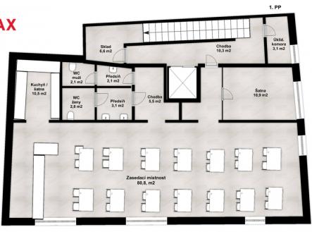
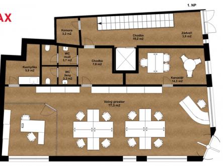
Nemovitost s jistým výnosem a prestiží Nabízíme k prodeji moderní polyfunkční budovu v srdci města Louny, oceněnou v roce 2008 titulem Stavba roku Ústeckého kraje. Objekt kombinuje rezidenční a komerční prostory, vyznačuje se vysokou obsazeností, dlouhodobými nájemními vztahy a stabilním výnosem. Budova je ve výborném technickém stavu, s výtahem a bezbariérovým přístupem. Díky své variabilní dispozici nabízí široké možnosti využití. Dispozice budovy • 1. NP (137m2) – reprezentativní konferenční sál se sociálním a cateringovým zázemím, vhodný pro firemní akce i společenské události • 1. NP (141m2) – moderní kancelářské prostory s open space kanceláří, zasedací místností, kuchyňkou a vlastním vstupem z ulice • 2. NP (132m2) – bytová jednotka 2+1 • 3. NP (132m2) – prostorný byt 3+1 • 4.–5. NP (135m2 + 116m2) – dva mezonetové byty 3+kk s balkony, nabízející komfort a soukromí Technické parametry • Každý byt má vlastní plynový kotel a měření energií • Komerční prostory disponují samostatným systémem vytápění a měřením • Profesionální správa a úklid společných prostor • Všechny bytové jednotky jsou aktuálně obsazené nájemníky, což zajišťuje okamžitý výnos Louny – město s potenciálem Strategická poloha • Jen 55 km od Prahy (metro Zličín) a 49 km od Letiště Václava Havla, s výbornou dostupností po dálnici D7 • Blízkost hranic s Německem otevírá další obchodní i pracovní příležitosti Kompletní občanská vybavenost • Školy, školky, střední i umělecké školy • Zdravotnická zařízení včetně polikliniky • Obchody, služby, sportoviště, výstaviště, koupaliště, zimní stadion, plavecká hala • Autobusový terminál s četnými spoji do Prahy a zpět Kulturní a společenský život • Bohatá nabídka kulturních institucí: městské divadlo, galerie, muzeum • Pravidelné festivaly, společenské akce a výstavy (např. Dům, Člověk v přírodě, Letní lounské vábení) • Historické památky včetně kostela sv. Mikuláše Pracovní příležitosti • V bezprostřední blízkosti města se nachází strategická průmyslová zóna Triangle, kde působí významní investoři (Nexen Tire, Hyundai Mobis, aj.) • To zajišťuje stabilní poptávku po bydlení i kancelářích Kvalita života a volný čas • Louny – „brána do Českého středohoří“ – nabízejí kombinaci městského komfortu a přírody na dosah • Rekreace v okolí: Nechranická přehrada (35 km), cyklostezky, turistika i lyžování v Krušných horách (Klínovec 77 km) Shrnutí pro investory: ✅ plně obsazená rezidenční část a výnosný investiční objekt ✅ kombinace komerčních a rezidenčních prostor s flexibilním využitím ✅ moderní architektura oceněná titulem Stavba roku Ústeckého kraje ✅ v atraktivní lokalitě s rostoucím ekonomickým potenciálem a vysokou kvalitou života Pokud hledáte stabilní investici s okamžitým výnosem a perspektivou růstu hodnoty, tato nabídka je určena právě Vám.


