Prodej - dům/vila, 110 m²
RD 5+kk, poz. 810 m2, Louňovice (PV)
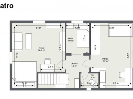
Exkluzivní nabídka. Nabízíme ke koupi rodinný dům, polohou v klidné oblasti původní zástavby rodinnými a rekreačními domy obci Louňovice, na samém okraji přírodní rezervace Voděradské bučiny. Jedná se o samostatně stojící, dvoupodlažní (přízemí a obytné podkroví) dům obdélníkového půdorysu s přístavbou, o dispozici 5+kk a podlahové ploše 110 m2. Plocha pozemku je 810 m2, z toho zastavěná plocha domem je 86 m2, zastavěná plocha přístavky je 32 m2. V přízemí se nachází zádveří, obývací pokoj s jídelnou a kuchyňským koutem, dále pokoj využívaný jako ložnice. Z obývacího pokoje je přístupné po lomeném schodišti obytné podkroví, které nabízí 3 samostatné pokoje a WC. V přízemí je zároveň koupelna (sprchový kout, umyvadlo), technická místnost a samostatné WC. Dům prošel v roce 2002 rekonstrukcí vnitřních prostor včetně realizace přístavby. Konstrukce domu je cihlová bez zateplení, okna dřevěná, v patře plastová, střešní krytina kanadský šindel. Vytápění zajišťuje plynový kotel s rozvodem do radiátorů, teplou vodu kombinovaný bojler. Zajištění domu je mechanické. Jako podlahové krytiny jsou použity keramická dlažba, linoleum a koberce. Z inženýrských sítí je zaveden vodovod, elektřina, kanalizace a plyn. Na pozemku je k dispozici studna. Na pozemku se zároveň nachází zděná, částečně podsklepená kůlna, která je vnitřně rozdělena na úložné prostory a sklep. Zahrada je rovinatá, relaxační. Obec Louňovice se nachází na východním okraji Prahy mezi obcemi Mukařov a Jevany. Školy a školky jsou dostupné v místě nebo v blízkých Říčanech, dopravní dostupnost autem i autobusem. Pro více informací nebo dojednání prohlídky kontaktujte makléře.


