Prodej bytu, 4+kk, 79 m²
Prodej, byty/4+kk, 79 m2, Loučná E54, 43191 Loučná pod Klínovcem, Chomutov [ID 69058]
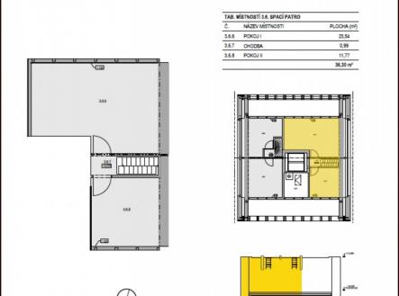
Nabízíme Vám prodej dvou bytových jednotek - apartmánů. Jedná se novostavbu v obci Loučná u Klínovce. Jedná se o mezonetové apartmány s velikosti 4+kk ve 3-4. patře apartmánového domu. V ceně bytu je využívání prostorné lyžárny/kolárny s možností umístění uzamykatelných skříní. Pokud hledáte druhé bydlení blíže přírodě, je tato exkluzivní nabídka přímo pro Vás nabízíme k prodeji dokončovanou novostavbu horského apartmánu krásným výhledem do okolní krajiny. Apartmán se nachází ve vyhledávané lokalitě Krušných hor v Loučné pod Klínovcem, v blízkosti dvou moderních lyžařských středisek (Skiareál Klínovec a Skiareál Fichtelberg) a německého lázeňského města Oberwiesenthal s kvalitní občanskou vybaveností. Poloha 1000 - 1244 m n. m. garantuje v zimě dostatek sněhu, v létě naopak velmi příjemné klima. Přímo v místě je bezpočet možností k turistice, cyklovýletům, sjezdům na horských kolech (Trail Park Klínovec), jízdě na běžkách, či houbaření. Apartmán je součástí nadčasového viladomu o sedmi bytových jednotkách a nachází se v klidné části obce. Dokončení stavby domu je plánováno na 3. čtvrtletí 2025. U apartmánu určitě oceníte promyšlené dispozice, příjemnou orientaci na tři světové strany a realizaci v nadstandardním provedení. Tepelnou pohodu Vám zajistí podlahové teplovodní vytápění a tepelná čerpadla. Vysoký komfort bydlení doplní výtah a vlastní parkovací stání za domem. V přízemí domu bude možné využívat kolárnu s lyžárnou pro uskladnění letního či zimního sportovního vybavení. Váš apartmán Vám může sloužit nejen pro vlastní rekreaci, ale i jako výhodná investice. Jeho koupí si můžete zajistit zajímavý pasivní příjem, když se rozhodnete apartmán pronajímat v době, kdy ho sami nebudete využívat. Pro tento případ Vám můžeme zajistit komplexní servis v oblasti krátkodobého pronájmu. Všechny jednotky budou v rámci projektu kolaudovány jako bytové, proto bude možné jejich koupi financovat prostřednictvím hypotečního úvěru, a to až do výše 80%-90% hodnoty nemovitosti. Pokud Vás nabídka zaujala neváhejte nás kontaktovat. S financováním Vám rádi pomůžeme.


