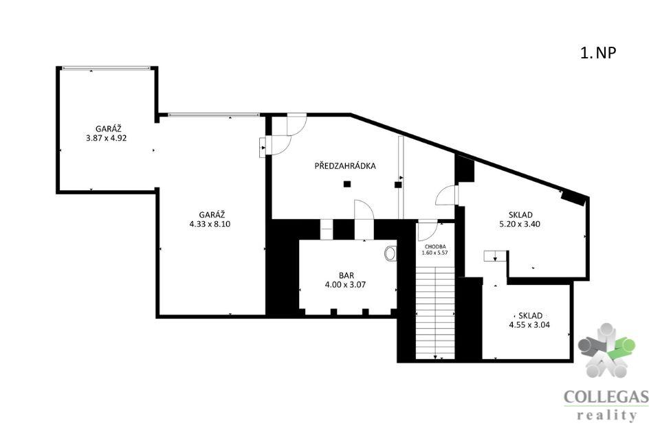
Prodej - dům/vila, 258 m²
Prodej, rodinný dům 4+1, Veselí - Lomnice
Hledáte místo pro nový domov, podnikání, odpočinek nebo setkávání s přáteli? To vše nabízí rodinný dům, který prošel kompletní rekonstrukcí v letech 2006 - 2007. Při rekonstrukci byl kladen důraz na použití kvalitních a co nejvíce bezúdržbových materiálů. V interiéru naleznete prvky z tvrdého masivního dřeva části podlah, podbití, schodiště i obložky dveří. V exteriéru pak mimo jiné měděné oplechování, svody a parapety. Dům nabízí velkorysé prostorové řešení. K dispozici jsou: - 3 ložnice - 2 koupelny - 2 samostatné toalety - obývací pokoj s krbem - hala s krásným výhledem na jezírko - kancelář - plně vybavená kuchyně se vstupem na zahradu - sklepy - 2 garáže - vinárna - další technické a skladové prostory Rodinný dům má rovněž potenciál dvougeneračního bydlení s možností dispozic 2+kk a 2+1. Další velkou předností je nízká energetická náročnost a s ní spojené nízké provozní náklady. V případě zájmu o prohlídku nebo více informací nás neváhejte kontaktovat.


