Prodej - dům/vila, 152 m²
Prodej rodinného domu, 152 m², Lomnice, ul. Josefa Uhra
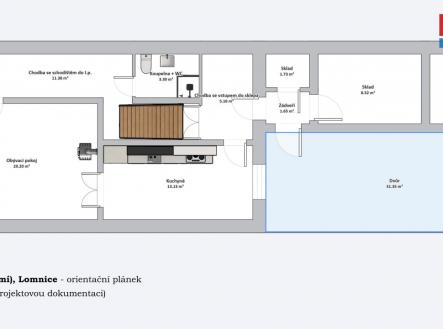
Hledáte rodinný dům v historické a klidné části Lomnice u Tišnova? Nabízíme k prodeji řadový rodinný dům s historií a osobním kouzlem ve své lokalitě a s velkým potenciálem do budoucna. Nemovitost s dvorkem je situována v klidné části obce, klidnou zahradou pár kroků od domu a nabízí ideální příležitost pro ty, kteří hledají bydlení s možností úprav podle vlastních představ. Dům je smíšené konstrukce a je vhodný k rekonstrukci, což umožňuje novým majitelům realizovat své sny o ideálním domově. Dispozice domu zahrnuje dvě nadzemní podlaží, sklep a další přilehlé prostory k užívání. Užitná plocha činí 152 m². Nechte se inspirovat možnostmi, které tento dům nabízí a vytvořte si domov dle svých představ. Dům disponuje prostornou půdou a je částečně podsklepený. S financováním rádi pomůžeme a srdečně vás zveme na prohlídky.


