Prodej - dům/vila, 827 m²
Prodej Rodinný dům, 827㎡
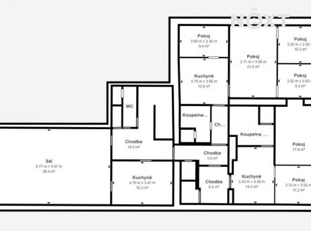
Nabízíme k prodeji rodinný dům s bohatou historií, který se nachází na adrese Křížatecká 87 v Litvínově. Nemovitost o celkové užitné ploše 324 m2 stojí na pozemcích o rozloze 1370 m2. Součástí je Janovský potok, který protéká středem pozemku a dodává celému místu unikátní atmosféru. Původně sloužil dům jako hospoda se sklady a dvěma bytovými jednotkami. Díky své dispozici a velikosti je však ideální k rekonstrukci a přestavbě, s možností vytvořit až osm bytových jednotek. Tato nemovitost nabízí obrovský potenciál nejen pro bydlení, ale i jako investiční příležitost. Dům je určen k rekonstrukci. Vytápění: Původně řešeno kotlem na tuhá paliva, který je momentálně nefunkční. Po domě jsou rozvody tepla. Aktuálně se topí přímotopy. Čistička odpadních vod: Dům má vlastní čističku, která zatím není zapojena. Připojení na plyn: Dům disponuje přípojkou na plyn, což může být výhodou pro rekonstrukci a budoucí vytápění. Nemovitost se prodává nevyklizená. Virtuální prohlídka z pohodlí domova Pro lepší představu o dispozici a aktuálním stavu domu jsme připravili 3D virtuální prohlídku, kterou si můžete pohodlně prohlédnout z domova. Doporučujeme prohlížet na počítači nebo tabletu, aby byl zážitek co nejvíce realistický. Nemovitost zahrnuje pozemky o celkové výměře 1370 m, které poskytují dostatek prostoru pro různé účely zahradu, parkování nebo další výstavbu. Janovský potok, který protéká přímo středem pozemku, dodává místu jedinečný ráz. Ideální příležitost pro investory i rodiny Tento dům je ideální volbou pro investory hledající potenciál rozdělení na bytové jednotky či rodiny, které hledají velkorysé bydlení v atraktivní lokalitě. Pro více informací či sjednání osobní prohlídky nás neváhejte kontaktovat: Pro komunikaci uvádějte evidenční číslo zakázky N113081.


