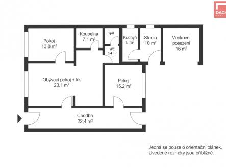
Prodej - dům/vila, 117 m²
Stylový rodinný dům po špičkové rekonstrukci – Nasobůrky u Litovle
Stylový rodinný dům po špičkové rekonstrukci – Nasobůrky u Litovle Exkluzivně představujeme moderní rodinný dům, který splní představy každého, kdo hledá kvalitní, bezstarostné a úsporné bydlení. Dům o užitné ploše 117 m² stojí na pozemku 793 m² v klidné obci Nasobůrky, jen pár minut od Litovle. Nemovitost prošla před několika lety kompletní rekonstrukcí do posledního detailu – od rozvodů až po izolace. Výsledkem je dům, který nabízí nejen maximální pohodlí, ale také mimořádně nízké provozní náklady. Stačí si přinést osobní věci a můžete bydlet. ???? Precizně provedená rekonstrukce, která má hodnotu Interiér i exteriér prošly kompletní obnovou. Všechny důležité prvky již byly vyměněny – nové rozvody elektřiny, vody i topení v mědi, nové odpady, podlahy, omítky a sádrokartonové podhledy. Dům je perfektně zateplen: fasáda 120 mm polystyren, strop 20 cm vaty a podlahy s 40cm izolací. Tato kombinace zajišťuje stabilní teplotu v domě po celý rok a velmi příjemné účty. Komfort doplňují klimatizační jednotky v každé místnosti, které v létě ochladí a v zimě efektivně přitopí. Střecha má navíc nedávno provedený nový nástřik. Výjimečné vlastnosti, které dělají rozdíl ✅ kompletní rekonstrukce a modernizace ✅ nízké provozní náklady díky nadstandardnímu zateplení ✅ klimatizace v každé místnosti s možností topení ✅ dům připravený ihned k nastěhování ✅ soukromý dvůr se zahradními stavbami ???? Vytápění zajišťuje ústřední plynový kotel. Povrchy podlah tvoří keramická a laminátová krytina, která je nejen estetická, ale i praktická při údržbě. Samozřejmostí je připojení na elektřinu, plyn, obecní vodovod i kanalizaci. ???? Dokonale řešený exteriér a soukromí, které oceníte Součástí nemovitosti je prostorný přístřešek na auto o rozloze 32 m², který umožňuje suchý přechod přímo do domu. Na zahradě najdete zděnou zahradní stavbu (10 m²) ideální pro odpočinek, dřevěný zahradní domek (8 m²) pro uskladnění nářadí, jezírko i kotec pro psa. Dvůr je přirozeně oddělen od okolí a poskytuje klidné a bezpečné zázemí pro rodinu i domácí mazlíčky. ????️ Lokalita, která kombinuje klid a perfektní dostupnost Nasobůrky jsou oblíbeným místem díky spojení vesnické pohody a blízkosti Litovle. Vše, co potřebujete – školy, obchody, služby, možnosti sportu i rychlý nájezd na dálnici – máte doslova pár minut od domu. ???? Financování V případě zájmu vám zajistíme výběr nejvýhodnější hypotéky z aktuální nabídky bank. Zprostředkujeme vše rychle, transparentně a na míru.


