Prodej - dům/vila, 136 m²
Prodej domu se stodolou a dílnami a ideálně velikou zahradou
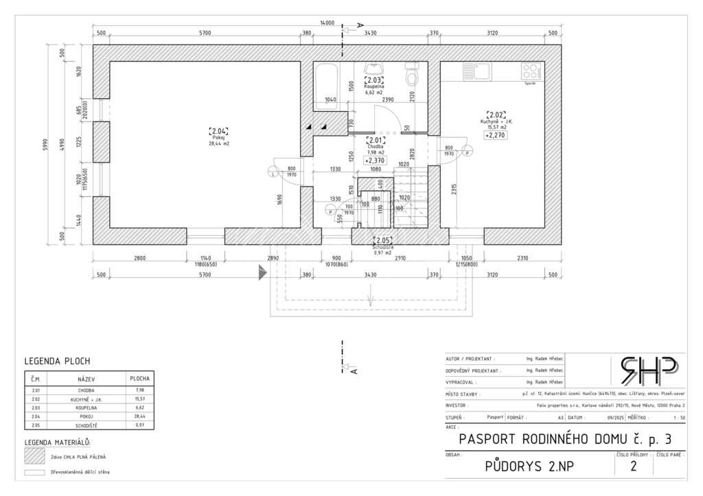
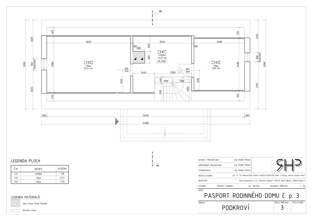
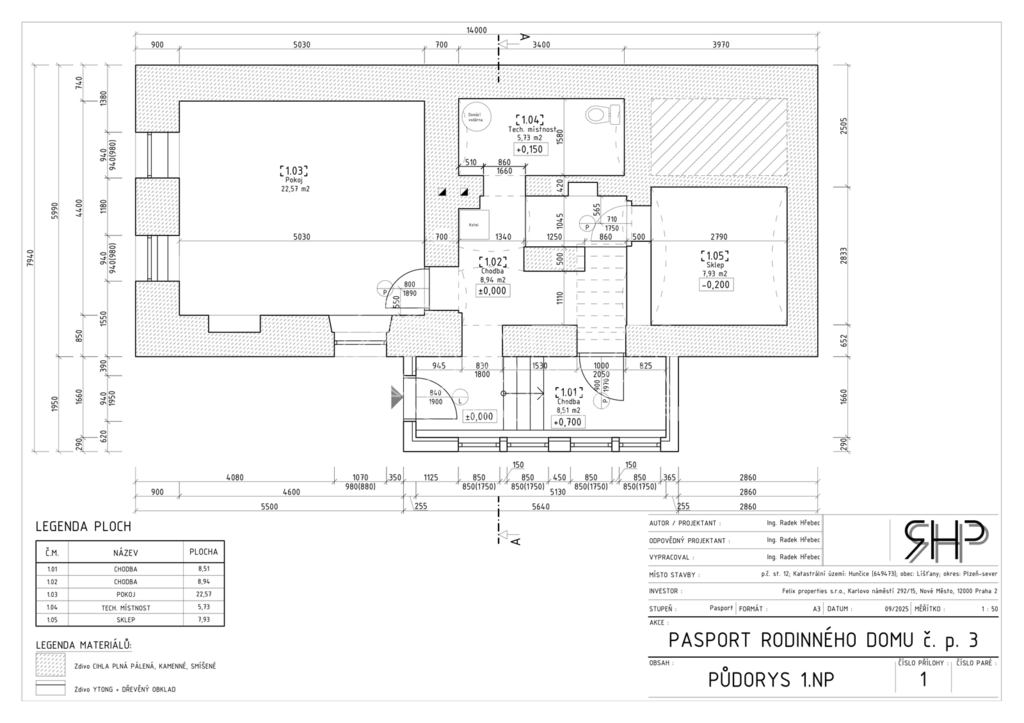
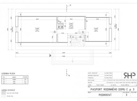
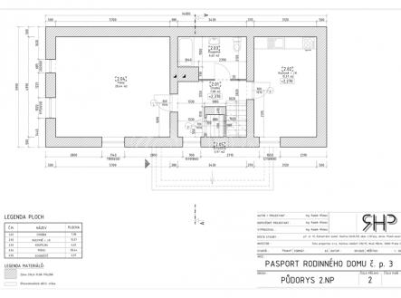
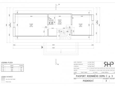
K prodeji nabízíme samostatně stojící rodinný dům v obci Hunčice, které se nachází jen 11 minut jízdy autem od Plzně. Nemovitost je vhodná pro menší rodinu, která ocení možnost využít stodolu a dílny, které se nacházejí na pozemku a zejména pak zahradu, kde se dá vybudovat altánek, krb, trampolína, bazén... Nemovitost je zcela jistě před částečnou rekonstukcí, před několika lety byla dělána nová střešní krytina a měněny okna za plastová. - parkování: na pozemku - voda: ze studny - odpad: jímka - teplá voda: Bojler Dražice OKC 125 z roku 2023 - topení: kotel Atmos C15S z roku 2022 - okna: plastová s dvojskly - sítě: přípojení T-Mobile - střecha: nová krytina; pálená taška - dispozice: 4+1 (1 pokoj v přízemí, 1 ve 2.NP, 2 v podkroví); všude jsou nížší stropy Orientační velikost místností o ostatních prostor: 1.NP - přízemí: Vstupní předsíň: 8,45 m2 Pokoj: 21,98 m2 Chodba: 8,63 m2 Místnost s bojlerem: 5,4 m2 Sklep: 8,29 m2 2NP - 1.patro: Obývací pokoj: 28,35 m2 Kuchyně: 15,5 m2 Koupelna: 6,65 m2 Chodba: 6,21 m2 Schody 1.NP-2.NP: 2,02 m2 Schody 2.NP-3.NP: 2,46 m2 3.NP - 2.patro: Ložnice: 17,04 m2 Pokoj: 10,2 m2 Chodba:8,59 m2 -------------------------------- Celkem: 136,08 m2 + sklep 8,29 m2 + místnost s bojlerem: 5,4 m2 + Stodola: 37,17 m2 + Dílna1: 25,06 m2 + Dílna2: 34,6 m2 + Sklad: 7,21 m2 + Stodola půda: 64,75 m2 Nemovitost je možné financovat hypotečním úvěrem. Na nemovitosti není žádná zástava. Pro více informací mi neváhejte napsat nebo zavolat.


