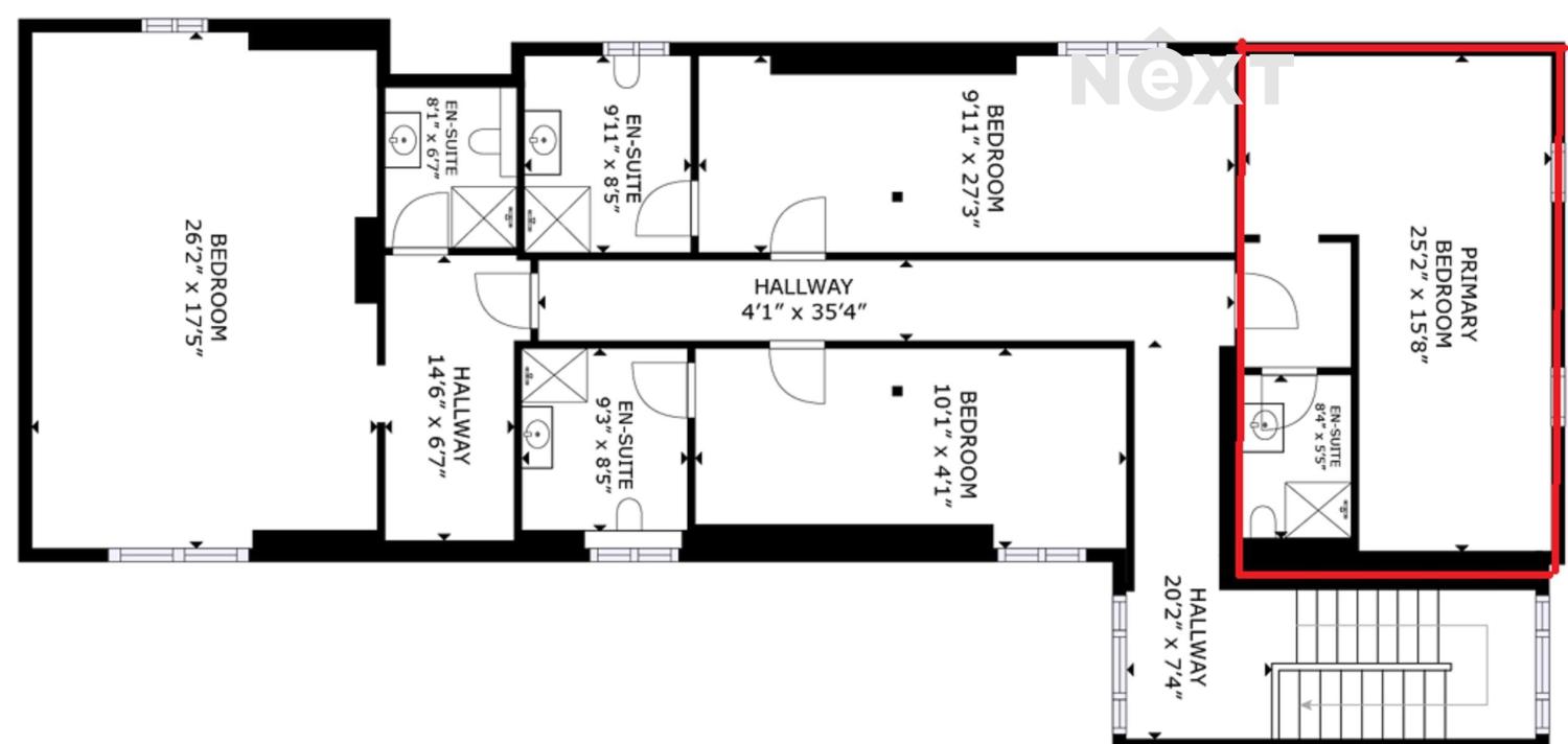
Prodej bytu, 1+kk, 28 m²
Prodej byt 1+kk, 28㎡
Nabízíme ke koupi moderní apartmán 1kk v osobním vlastnictví o velikosti 28 m², nacházející se v bezprostřední blízkosti oblíbeného lyžařského areálu Kramolín na Lipně. Apartmán vznikl v rámci kompletní rekonstrukce původního penzionu, která byla dokončena v roce 2021. Jednotka je plně vybavena a připravena k okamžitému užívání. Výhody nemovitosti: • osobní vlastnictví s neomezeným užíváním, • možnost zapojení do profesionálního programu správy a celoročního pronájmu apartmánu, • vlastní parkovací stání přímo u objektu, • praktický skladový prostor pro úschovu sportovního vybavení či osobních věcí. Technické informace: • vytápění a ohřev vody zajišťuje tepelné čerpadlo s podlahovým teplovodním vytápěním, Apartmán se nachází v atraktivní rekreační oblasti Lipna nad Vltavou, jen pár minut chůze od lyžařského areálu Kramolín, který v zimě nabízí skvělé podmínky pro sjezdové lyžování, snowboarding i běžky. V létě si zde přijdou na své milovníci turistiky, cykloturistiky a vodních sportů – v blízkosti je přehrada Lipno, oblíbená pro koupání, rybaření, plachtění nebo paddleboarding. V docházkové vzdálenosti se nachází: • Stezka korunami stromů – unikátní rozhledna s krásnými výhledy na Šumavu, • Aquaworld Lipno – vodní svět vhodný pro děti i dospělé, • Marina Lipno – přístav s restauracemi, kavárnami a obchody, • Cyklostezky a běžkařské tratě – perfektně značené trasy v nádherné přírodě, • Lanovka a sjezdovky – ideální pro zimní rekreaci. Občanská vybavenost v Lipně nad Vltavou zahrnuje: • supermarket a menší obchody s potravinami, • restaurace, kavárny a pekárny, • školku, základní školu a zdravotní středisko, • lékárnu, poštu, bankomat, • půjčovny kol, lyží a sportovního vybavení. Pro komunikaci uvádějte evidenční číslo zakázky N113301.


