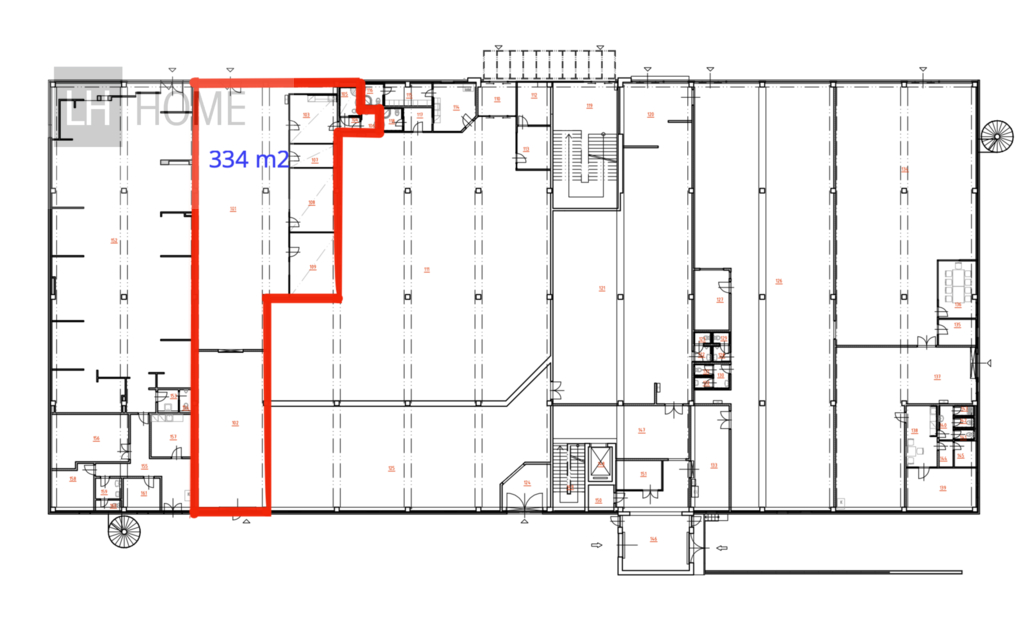
Pronájem - obchodní prostor, 334 m²
PRONÁJEM NEBYTOVÉ PROSTORY - Liberec
Nabídku k pronájmu nebytových obchodních prostor v Liberci o výměře 334 m2. Součástí nebytového prostoru je vlastní kuchyňka a sociální zařízení, šatna, kanceláře. V zadní části se nachází sklad s garážovými vraty. Obchodní prostory se nachází v OD SPECTRUM a jsou situovány vedle známého obchodního centra NISA Liberec. Vlastní parkoviště se 70 místy. Nabízíme výhodné podmínky pronájmu. V obchodním centru NISA a jeho okolí jsou tito nájemci: Sconto nábytek, McDonald, hypermarket Albert, Datart, iWant, Orsay, Deichmann, Bambule, DM Drogerie, Baťa, Uncle Sam, CCC, Cinestar, Reserved, HM, Tescoma, Pompo, New Yorker, A3 Sport, Intersport, Martes sport, Alpinepro a mnoho dalších. Nájemné: 250,-Kč/m2 bez DPH (celkem 83.500,-Kč bez DPH) Energie a služby jsou dle skutečné spotřeby.


