Pronájem bytu, 3+kk, 50 m²
Pronájem bytu 3+kk, 50 m², Liberec V-Kristiánov
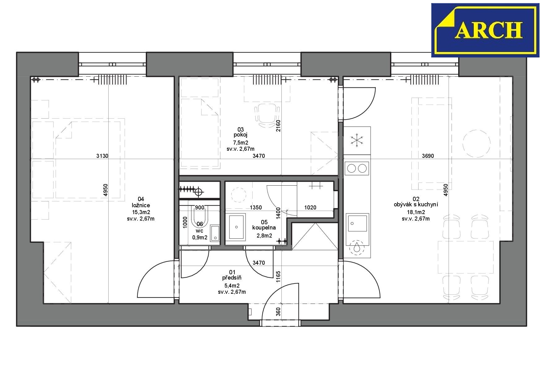
Byt 3+KK (50,0m²) bez balkonu, orientovaný na jih až jihozápad - je umístěný ve 2.patře v domě bez výtahu. Výhled v zimě je skrz koruny stromů až na Ještěd, ale v letních měsících je výhled pouze do korun listnatých stromů (lip), které rostou na protější straně ulice. Jedná se o atraktivní lokalitu vzdálenou asi 1,3km od centra města. Přilehlá komunikace je jednosměrná, klidná. Dům byl postaven v 60. letech 20. stol. Vybavení kuchyňského koutu tvoří kuchyňská linka s dřezem a dvouplotýnkovou el. varnou deskou, digestoř, horkovzdušná trouba, myčka nádobí, lednička a mraznička. V koupelně je sprchový kout, umývadlo s podumývadlovou skříňkou, zrcadlová skříňka s osvětlovací rampou a místo pro pračku. Koupelna je kompletně obložená až ke stropu. Závěsné WC je umístěno v samostatné místnosti s umývátkem. V předsíni je velká vestavěná skříň. Podlahy v koupelně a na WC tvoří keramické dlažby. V obývacím pokoji a v ložnici jsou renovované parkety, v předsíni a v dětském pokoji jsou podlahy vinylové. Dveře jsou hladké plné nebo prosklené (do pokojů), osazené do bílých obložkových zárubní. Okna jsou plastová, s izolačními dvojskly a se žaluziemi. Celý byt prošel od listopadu 2025 do ledna 2026 kompletní rekonstrukcí vč. rozvodů elektřiny. Obýv. pokoj s kuch. koutem má 18,1m², ložnice 15,3m², dětský pokoj 7,5m², předsíň 5,4m², koupelna 2,8m² a WC 0,9m². Budova je zateplená. Vytápění je ústřední - napojené na městskou teplárnu. Stejným způsobem je zajištěn také ohřev TUV. K bytu přísluší běžná sklepní kóje (2m²) umístěná v suterénu domu. Parkování je před domem veřejné. Byt je volný, připravený k nastěhování. Záloha na služby (teplo, teplá voda, vodné a stočné a elektřina na schodišti atd.) je 3.500Kč/měs. a bude vyúčtovaná dle skutečnosti. Elektřinu si sjedná nájemce přímo s distributorem (odhadem cca 1.400Kč/měs.). V domě je rozvod optického kabelu pro internet a TV - připojení si sjedná nájemce. Při podpisu smlouvy nájemce složí vratnou kauci 25.000Kč (jistina na vybavení a nedoplatky) + provizi 15.000 Kč.


