Prodej bytu, 3+1, 85 m²
Prodej bytu 3+1 85 m²
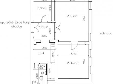
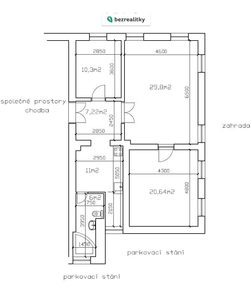
Nabízíme k prodeji byt 3+1 o výměře 85 m², v osobním vlastnictví, v Liberci v ulici Matoušova. V těsné blízkosti se nachází vlakové i autobusové nádraží a zastávka MHD. V docházkové vzdálenosti se nachází Mateřská škola, ZŠ, cyklostezka, Billa, pošta. Byt se nachází v přízemí zděného cihlového domu, ve kterém je pouze 8 bytů. Dům je po dílčích rekonstrukcích, aktuálně má nově zrekonstruovanou střechu, má fungující SVJ. Dům má vlastní zahrádku a parkovací místo, náležící ke každému bytu, za domem na vlastním oploceném pozemku. Vytápění a příprava teplé vody je řešena novým plynovým kotlem umístěným v kuchyni. K bytu náleží několik dalších uzamykatelných úložných prostor – sklepní kóje, kůlna, místnost na chodbě a půdní kóje. Byt má tři prostorné pokoje, kuchyň a koupelnu s WC. Byt je vybaven kuchyňskou linkou, veškerými spotřebiči a částečně i nábytkem – možnost konkrétní domluvy o co bude mít kupující zájem. Financování je možné hypotékou, byt je k nastěhování dle dohody. Tato nemovitost je určena výhradně přímým zájemcům o koupi. Na inzerát můžete také reagovat přímo na webu Bezrealitky: https://www.bezrealitky.cz/nemovitosti-byty-domy/954105-nabidka-prodej-bytu-matousova-liberec


