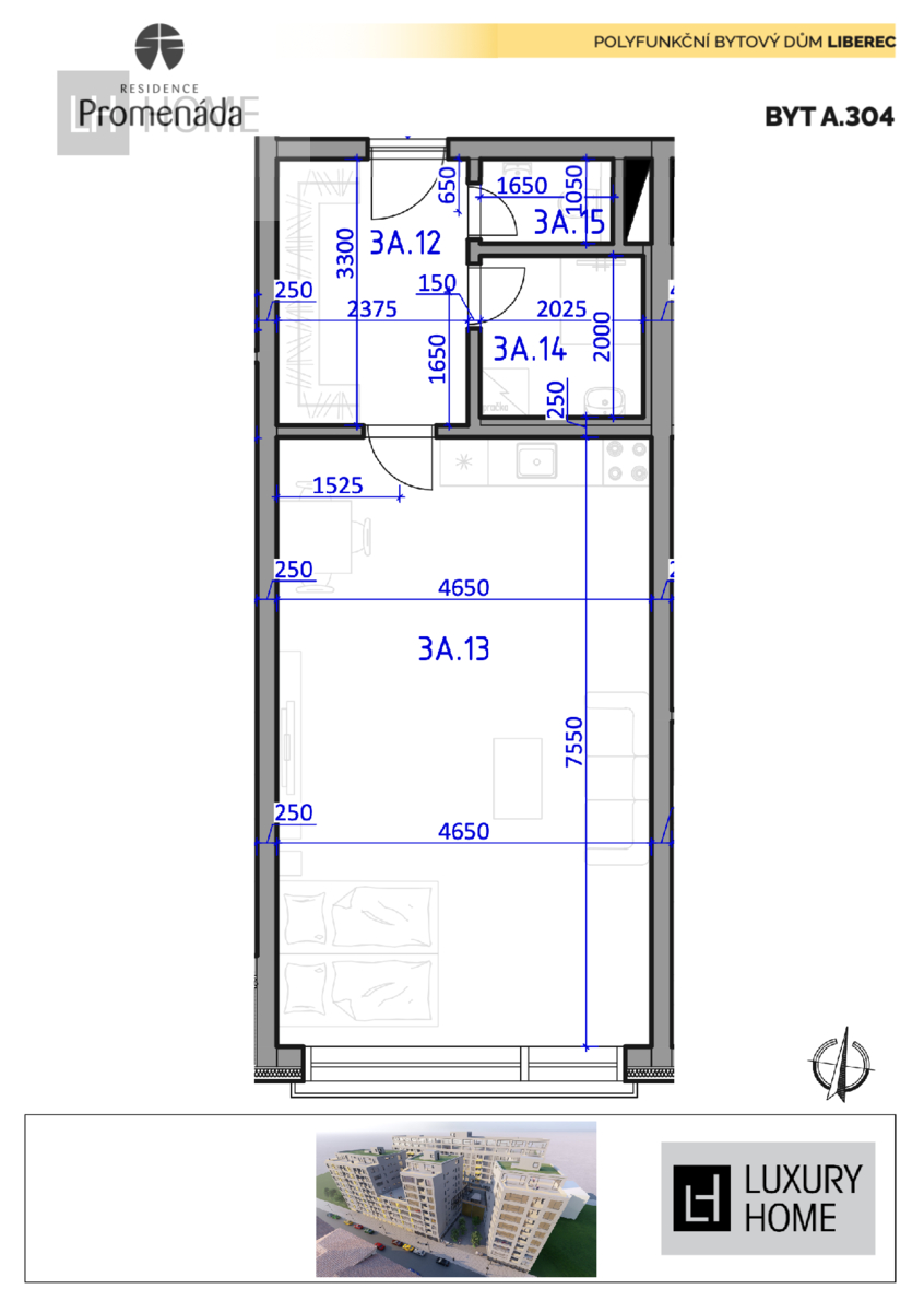
Prodej bytu, 1+kk, 52 m²
Prodej bytu 1+kk, Residence Promenáda
Nabízíme prodej bytu 2+kk o výměře 53,46 m2 vč. příček + balkón 4,4 m2 v projektu Residence Promenáda. Byt se bude nacházet ve 3. nadzemním podlaží. Byt bude orientovaný na jižní stranu. Celkem bude v budově B 9. nadzemních podlaží a 3. podzemní podlaží, kde budou garážová stání. V 1. a 2. nadzemním patře budou komerční prostory. Součástí kupní ceny jsou vinylové podlahy, keramické obklady a dlažby v koupelně a na wc. Vana, skříňka s umyvadlem a zrcadlem, topný žebřík, oddělená toaleta s umyvadélkem, Interiérové dveře s obložkami - bílé. Součástí každého bytu bude videotelefon. Ke každé bytové jednotce je nutné zakoupit garážové stání a sklep. Nízké provozní náklady garantuje energetický štítek B. Předpokládaný termín zahájení výstavby 3Q 2024, předpokládaný termín dokončení 4Q 2027. Byt je možné zakoupit do osobního nebo družstevního vlastnictví. Všechny naše projekty je možné vidět na našich webových stránkách. Celkem bude v tomto novém projektu 247 nových bytů o dispozicích 1+kk, 2+kk a 3+kk. Na prvních 50 bytů bude poskytnuta sleva ve výši 10%. Nabídková cena je před uplatněním slevy. Více informací již brzy na našich webových stránkách. V případě bližších informací jsme k dispozici. Parcelní číslo 4064/3


