Prodej - dům/vila, 200 m²
Multifunkční dům na horách
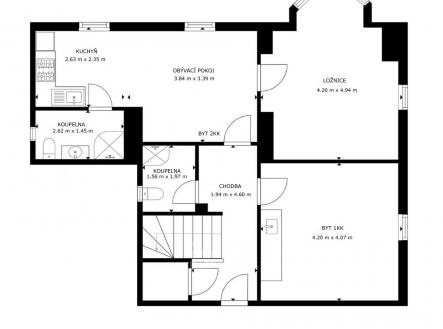
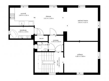
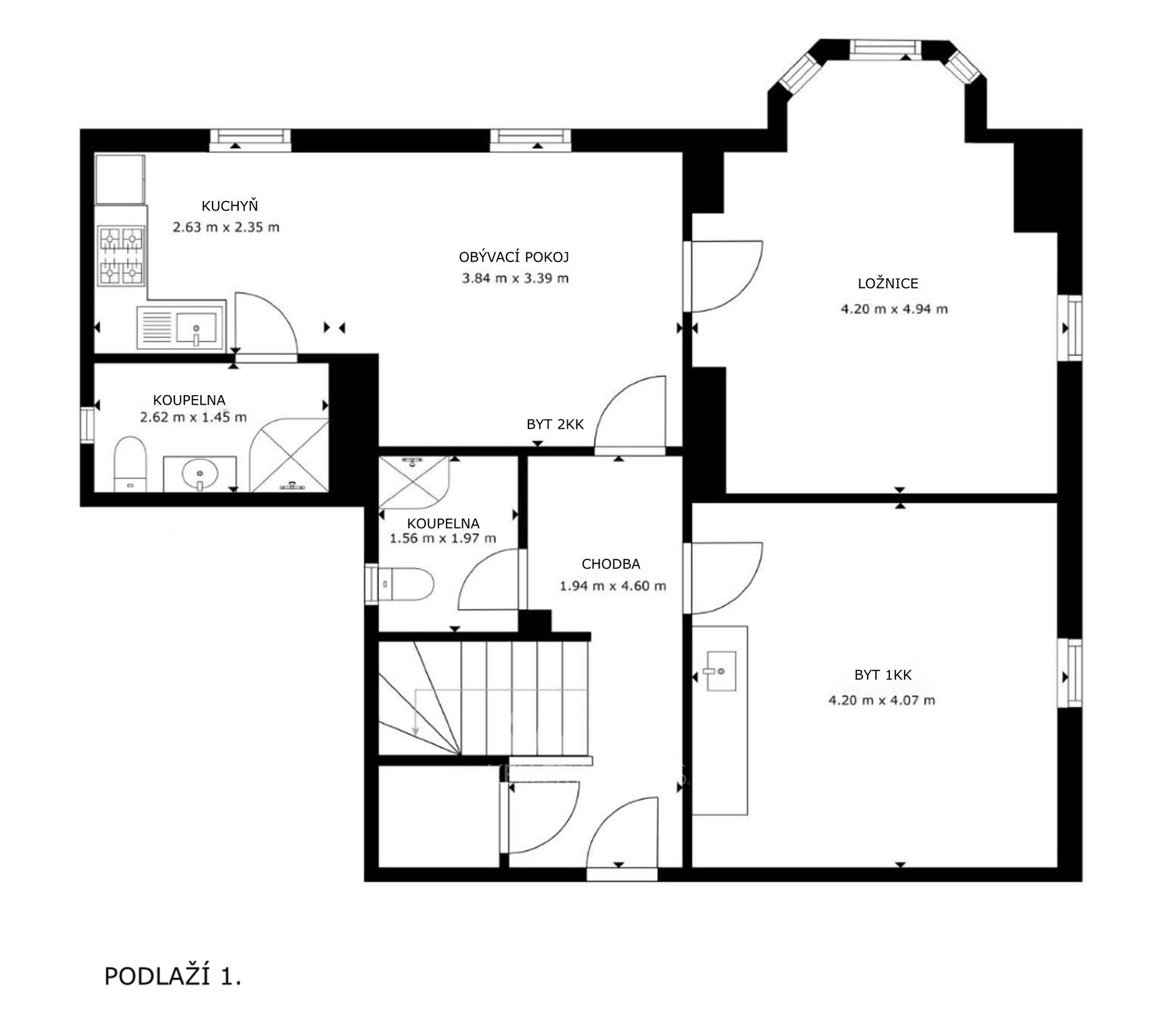
Přáli byste si rodinný dům v romantické přírodě kousek od Liberce? Nebo jste milovník zimních sportů a líbilo by se Vám horské útočiště? Nebo hledáte investiční nemovitost s několika bytovými jednotkami? Nebo by se Vám líbila kombinace něčeho zmíněného? Tak jste tu tedy správně. Dnes pro Vás mám rustikální vilu z roku 1938 nacházející se u Mojžíšova pramene. Vila byla postavena česko-německou rodinnou, dle návrhů německých architektů a je vystavěna z cihel. Dům byl kompletně a citlivě zrekonstruován a k dokončení rekonstrukce došlo před dvěma lety. Dům se nachází téměř na samotě přesto pouhých 10min. do centra Liberce. Pozemek je na velmi žádaném a oblíbeném místě, v populární lokalitě Vratislavic nad Nisou s vyhlídkami na Liberec a Ještěd, vstupem do okolních lesů směrem na vyhlídku Císařský kámen a kousek nad domem jsou dokonce vidět i Krkonoše. Romantické prostředí s přilehlými loukami a lesy nabízí velmi klidné bydlení, bez přímých sousedů avšak s velmi dobrou dostupností do centra Liberce, Jablonce nebo s pohodlným napojením na Prahu (ta je cca 55 min autem). Koupat se můžete například ve Veseckém rybníku (1km na kole). Jedná se o velmi unikátní prostor, vzhledem k jeho poloze a okolí. Rekonstrukce obsahovala rozvody elektřiny, vody, topení, podlahové topení v přízemí, výměna oken, podlahy, koupelny, kuchyně, vyvložkovaný komín s dvěma průduchy a novou čistírnu odpadních vod dimenzovanou pro 8 osob. Je zde i příprava rozvodů a nádrže na dešťovou vodu na splachování a zalévání. Použity kvalitní materiály, italská dlažba a keramika, dřevěné podlahy z masivu, francouzské kuchyně. Vše designováno s ohledem na unikátnost domu a jeho přirozenou polohu v rámci prostoru kde se nachází. Celý dům je podsklepen (cca. 70m2), sklepní prostory se využívají jako kotelna, prádelna a sklad. Nyní se v domě nachází tři byty o dispozicích 1kk, 2kk a 3kk. Předěl mezi přízemím a horním patrem lze vyřešit elektrickou roletou. Na pozemku 1080m2 je připravená voda a elektřina na saunu, bazén, či letní kuchyň. Dále se zde nachází samostatná garáž (20m2) a hrací prvky pro děti. Na domě je bezpečnostní kamera a elektrické rozvody na další kamery v každém rohu domu. Pro virtuální prohlídku domu mě kontaktujte a na následnou prohlídku se budu těšit.


