Pronájem - dům/vila, 87 m²
Pronájem rodinného domu, 87 m², Libenice
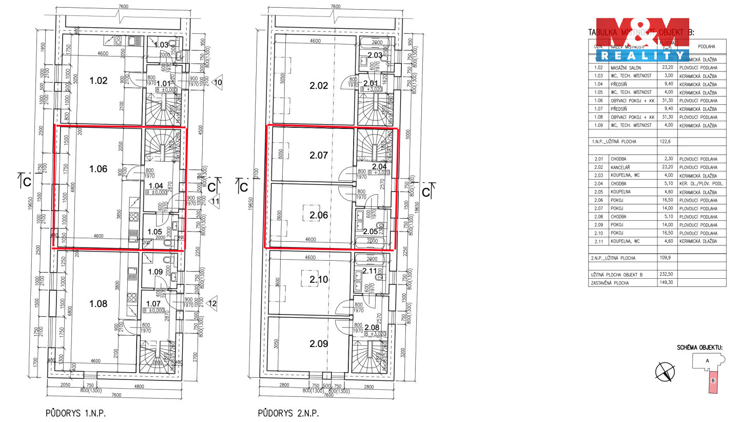
Nabízíme k pronájmu moderní řadový dům 3+kk, v novostavbě z roku 2024, nacházející se v klidné části obce Libenice. Tato jedinečná nemovitost s užitnou plochou 87 m² vám poskytne komfortní bydlení s nízkými náklady. Mezonetový byt je umístěn v 1. a 2. nadzemním podlaží a disponuje samostatným vchodem. K bytu náleží dvě zahrádky – 18 m² přístupná z obývacího pokoje a další 12 m² u vchodu, ideální pro relaxaci či zahradničení. Byt od kolaudace nebyl ještě obýván a nastěhování je možné od 1. března. Perfektní volba pro ty, kteří hledají klidné a moderní bydlení s výbornou dostupností. Nezmeškejte tuto příležitost a domluvte si prohlídku ještě dnes!


