Prodej - dům/vila, 138 m²
Prodej domu 138 m², pozemek 138 m²
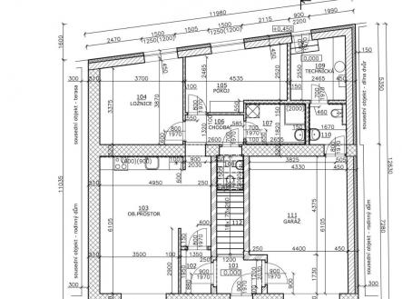
Nabízím k prodeji přízemní řadový rodinný dům v původním stavu, určený k zásadní rekonstrukci. Stávající dispozice je 2+1 s průjezdem, dvorem, hospodářskou místností a sklepem. Objekt je zděný z nepálených cihel a v aktuálním stavu neodpovídá dnešním standardům bydlení – je vhodný pro kupujícího, který hledá nemovitost ke kompletní modernizaci nebo přestavbě. K nemovitosti je k dispozici zpracovaný projekt a vydané stavební povolení na rekonstrukci, která de facto řeší vznik "nového domu“ se zásadně vyšším standardem a kapacitou. Základní parametry: Pozemek: 138 m² Stávající zastavěná plocha: cca 108 m² Stavba: přízemní řadový dům, průjezd, dvůr, hospodářská část, sklep. Inženýrské sítě v domě: kanalizace, voda, elektřina, plyn. Rekonstrukce dle povoleného projektu (nový stav): Projekt počítá se stavbou s plochou zastavění 138 m², dispozicí 7+kk, garáží a 2 podlažími (1NP + podkroví). Projekt počítá s jistou variabilitou obytných prostorů. Nemovitost je vhodná pro kupujícího, který chce rychleji realizovat přestavbu díky připravené dokumentaci a stavebnímu povolení, pro investora / developera (malý pozemek v řadové zástavbě, jasně definovaný „cílový stav“ domu). Pro bližší informace a sjednání prohlídky mne neváhejte kontaktovat prostřednictvím zpráv na komunikační platformě. Tato nemovitost je určena výhradně přímým zájemcům o koupi. Na inzerát můžete také reagovat přímo na webu Bezrealitky: https://www.bezrealitky.cz/nemovitosti-byty-domy/975937-nabidka-prodej-domu-drazovska-letonice


