Prodej - chata/rekreační objekt, 45 m²
Chata 2+kk + domek pro hosty + veranda + terasa. Pozemek 967 m2.
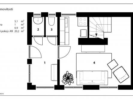
Toužíte po místě, kde načerpáte energii, obklopeni přírodou a přitom s výbornou dostupností do Prahy? Pak pro vás máme ideální nabídku zděná chata 2+kk o užitné ploše 45 m, nacházející se v klidné lokalitě Břežany u Lešan. Chata má zcela novou koupelnu vybavenou sprchovým koutem, WC a umyvadlem, což výrazně zvyšuje komfort jejího využívání a dává možnost pohodlného pobytu během celého roku. Pozemek o rozloze 967 m nabízí dostatek prostoru pro zahradničení, relaxaci i rodinné aktivity. Vzrostlá zeleň a malebná přírodní scenérie vytvářejí harmonické prostředí pro odpočinek po celý rok. Součástí areálu je také samostatný domek pro hosty, který může sloužit jako ubytování pro návštěvy, dílna, ateliér nebo klidné pracovní zázemí. Chata je vybavena elektrickými přímotopy a bojlerem, takže nabízí plnohodnotné a komfortní využití i v chladnějších měsících. Lokalita patří mezi vyhledávané oblasti jen pár kroků od řeky Sázavy, která láká k procházkám, cyklistice, rybaření i vodním sportům. Výhody pozemku dle schváleného územního plánu (plocha rekreace R): Možnost 2 nadzemních podlaží + obytné podkroví Celkem lze vytvořit až 240 m podlahové plochy Maximální výška stavby 6 m k římsové hraně od terénu Zastavěnost pozemku max. 20 % (cca 193 m) Zeleň minimálně 65 % plochy klid a soukromí zajištěno Doplňkové stavby povoleny např. zahradní domek, dílna, altán nebo objekt pro hosty Výborná investice vhodné jak pro rekreaci, tak pro budoucí trvalé bydlení Výborná dostupnost: Týnec nad Sázavou (3 km) obchody, školy, zdravotnická zařízení Benešov (13 km) okresní město s kompletní občanskou vybaveností Dálnice D1 rychlé spojení do Prahy (cca 35 km) V okolí také autobusová doprava Neváhejte přijďte se osobně přesvědčit o kouzlu této nemovitosti.


