Pronájem - dům/vila, 222 m²
Pronájem prostorného rodinného domu 4+1 (222 m²) se zahradou, dvojgaráží - Kyšice
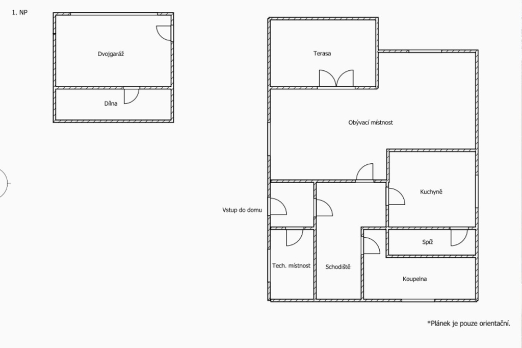
Nabízíme k pronájmu prostorný a pečlivě udržovaný rodinný dům o dispozici 4+1 s celkovou podlahovou plochou 222 m², dvojgaráží, dílnou a udržovanou oplocenou zahradou. Dům se nachází ve vyhledávané a klidné části obce Kyšice, v dojezdu několika minut do Kladna, Unhoště a s velmi rychlým napojením na dálnici D6 směrem na Prahu. Nemovitost nabízí nadstandardní soukromí, klid a komfortní bydlení v příjemné lokalitě s výhledem do okolní krajiny. Dům je dvoupodlažní a jeho dispozice nabízí dostatek prostoru pro pohodlné rodinné bydlení. V přízemí se nachází prostorný obývací pokoj s krbem a francouzskými okny, které vedou na jižně orientovanou terasu, jež poskytuje krásné světlo a příjemný výhled. Kuchyně je plně vybavená veškerými spotřebiči – indukční varnou deskou, troubou, myčkou i velkou lednicí s mrazákem. V domě jsou celkem dvě koupelny, z nichž jedna je vybavena vanou a druhá sprchovým koutem. V patře se nachází tři ložnice. K dispozici je také velká šatna a jedna z ložnic má vlastní balkon. Dům je částečně zařízený a je ve výborném technickém stavu. Nemovitost prošla postupnou modernizací a má výborné technické parametry. Dům je kompletně zateplený, což výrazně snižuje náklady na vytápění. Instalována jsou plastová okna s dvojskly, která zajišťují tepelnou i akustickou pohodu. Střecha je nově izolovaná a zateplená, díky čemuž je dům energeticky úsporný a vhodný pro celoroční komfortní bydlení. Vytápění domu zajišťuje nový kondenzační plynový kotel Immergas Victrix Tera V2 24 Plus EU a ohřev teplé vody úsporný bojler Dražice OKC 200 NTR/BP o objemu 200 litrů. O bezpečnost se stará zabezpečovací systém Jablotron, který je osazen jak v domě, tak v garáži. Na oknech jsou instalovány elektrické venkovní rolety, které zvyšují komfort i soukromí. Součástí domu je dvojgaráž o velikosti 36 m² s výškou vrat 2 metry a samostatná dílna o velikosti 12,3 m². Před domem je možné parkovat další dva vozy. Celý pozemek je oplocený a díky vzrostlým stromům poskytuje maximální soukromí. Za garáží se nachází příjemné venkovní posezení, vhodné pro grilování, relaxaci nebo případné umístění zahradního bazénu. Výhled za domem směřuje přímo do přírody, bez přímých sousedů, což podtrhuje celkový klid a atmosféru lokality. Obec Kyšice nabízí výbornou dostupnost do Kladna (cca 7 minut), do Unhoště (5 minut) i k dálnici D6, odkud je možné dostat se do Prahy přibližně za 12 minut. Jedná se o velmi klidnou rezidenční lokalitu s rodinnými domy, dostatkem zeleně a možnostmi pro volnočasové aktivity. Měsíční nájemné činí 43.000,- Kč, poplatky jsou cca 7.000,- Kč (4 os.). Kauce je stanovena na 70.000,- Kč a provize realitní kanceláři je ve výši 21.500,- Kč. Dům je k dispozici k okamžitému nastěhování. V případě zájmu o rezervaci termínu prohlídky či doplnění informací mě neváhejte kontaktovat. Průkaz energetické náročnosti budovy bude dodán, a tak momentálně uvádíme energetickou třídu G.


