Prodej - pozemek pro bydlení, 940 m²
Prodej pozemku k bydlení, 940 m², Kyšice
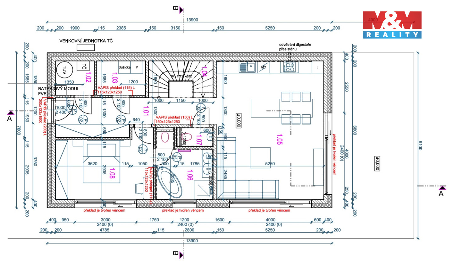
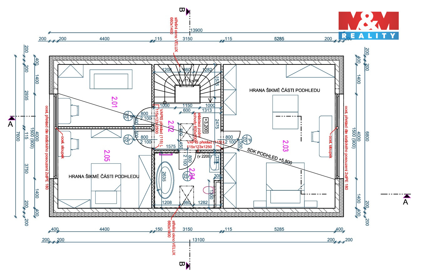
Hledáte stavební pozemek v okolí Prahy, Kladna, Berouna s vidinou toho, že ještě další 2 roky budete řešit přípojky a stavební povolení? Nyní již máte vyřešeno, přijeďte do Kyšic, kde na Vás čeká slunný, rovinatý pozemek o výměře 940 m2 se všemi inženýrskými sítěmi: voda, kanalizace, elektřina i s osazenými měřidly i asfaltovou komunikací. V ceně pozemku je i projekt patrového domu s dvěma parkovacími místy, s platným stavebním povolením. Pod částí pozemku, na okraji, vede obecní dešťová kanalizace. V obci Kyšice je základní občanská vybavenost, obchod, školka, ve vedlejší Unhošti je školka, škola, zdravotnické zařízení, pošta a obchody, v Kladně a Berouně sportoviště, zdravotní, kulturní a nemocniční zařízení. Spojení autobusem Kladno – Beroun a pokud zvolíte cestu autem, tak na D6 to trvá 3 minuty, na Kladno 10, do Berouna s nájezdem na D5 19 a do Prahy Dejvice 25 minut jízdy autem. V okolí najdete dostatek cest pro turistiku a cyklistiku a nádherné Křivoklátsko, přijeďte se podívat.


