Prodej - dům/vila, 145 m²
Prodej, Rodinný dům, 145 m² - Kyjov - Bohuslavice
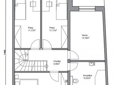
Nabízíme Vám poslední volný dům číslo 3 - Moderní a prostorný: Dispozice: 6+kk, Podlahová plocha: 145 m2, Plocha pozemku: 890 m2, Komfortní uspořádání: Garáž, kryté parkovací stání, obývací pokoj s kuchyňským koutem, 5 neprůchozích pokojů, 2 koupelny s WC, terasa. Cena v provedení nízkoenergetického RD: 7.659.531,-Kč, cena včetně pozemku, parkoviště a bez kuchyňské linky. Stavbu nízkoenergetických domů provádí stavební společnost Úsporné bydlení s.r.o., s 20 letou tradicí. - Moderní a energeticky úsporný dům s vysokým standardem, postavený s důrazem na kvalitu zpracování. - Domy jsou navrženy jako nízkoenergetické dřevostavby s difůzně uzavřenou konstrukcí, což zajišťuje minimální energetickou náročnost a nízké náklady na provoz. - Vlastní tepelné čerpadlo. - Rekuperace s řízeným větráním zaručí zdravé a pohodlné bydlení. - Ohřev teplé vody -fotovoltaika, vytápění TČ vzduch – vzduch. Předání: Domy budou připraveny k nastěhování do 6 měsíců od začátku stavby. Stačí si na vlastní náklady zařídit kuchyňskou linku, svítidla a zeleň na zahrádce. Dotace NZÚ: domy jsou připraveny čerpat dotaci z programu „Nová zelená úsporám“. Lze postavit i jako pasivní dům. Pokud hledáte moderní bydlení s nízkými provozními náklady v klidné lokalitě s perfektní dostupností do okolních měst, tento dům je ideální řešení právě pro vás. Obec Bohuslavice se nachází 5km od města Kyjova, výhodné spojení vlakem i autobusem, v obci mateřská i základní škola, fotbalové hřiště, přírodní koupací biotop, COOP. Možnost pěších túr a cyklo výletů do nádherné přírody Chřibů. Rádi Vám pomůžeme s financováním této nemovitosti. Pro více informací mě neváhejte kontaktovat.

