Prodej - dům/vila, 161 m²
Prodej prostorného rodinného domu, 161 m², v Kunraticích
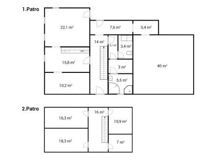
Rodinný dům, z kterého dýchá historie a nabízí možnosti pro klidný rodinný život. Nynější majitelé začali s rekonstrukcí tohoto objektu. Aktuálně je renovace ve fázi, kdy je první nadzemní podlaží připraveno kompletně k užívání. Včetně nových rozvodů, podlah, stěn, koupelny i technického zázemí. Do druhého nadzemního podlaží jsou připraveny rozvody topení a bude jen na nových majitelích, jak dispozici využijí. Kde bude ložnice a kde dětský pokoj, už je otázkou budoucí. A pokud by bylo i při stávající dispozici 5+1 málo místa, je tu prostorné podkroví, které dává další možnosti jak rozšířit aktuálních 161 m² podlahové plochy. V rámci rekonstrukce byla vytvořena i technická místnost pro pračku a sušičku, dvě toalety a koupelna. Včetně nových rozvodů vody a odpadů. Stejně tak je kompletně rozvedena i nová elektřina v přízemí. Jako tepelný zdroj byl zvolen automatický kotel na tuhá paliva napojený na nový komín. Voda je připojena na veřejný vodovod. Kromě obytné části nabízí dům také prostornou stodolu, venkovní samostatnou garáž a byla instalována i elektrická brána pro vjezd a kamerový systém. Nemovitost je možné financovat hypotečním úvěrem a také lze využít dotačních programů na rekonstrukce nemovitosti. V rámci prohlídky nemovitosti Vám rád sdělím veškeré dostupné informace k nemovitosti i financování. Těším se na osobní setkání. S pozdravem, Vladimír Řehák


