Prodej bytu, 2+kk, 79 m²
Novostavba bytu 2+ kk 73,8m2 s terasou a předzahrádkou 56m2, Kunčice nad Labem u Vrchlabí
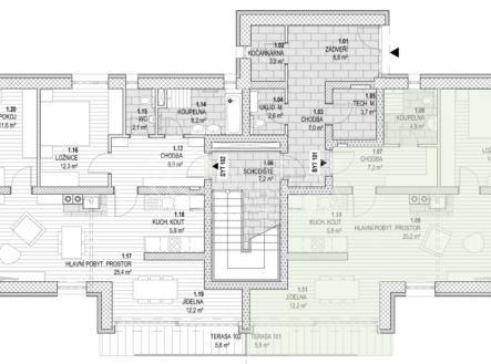
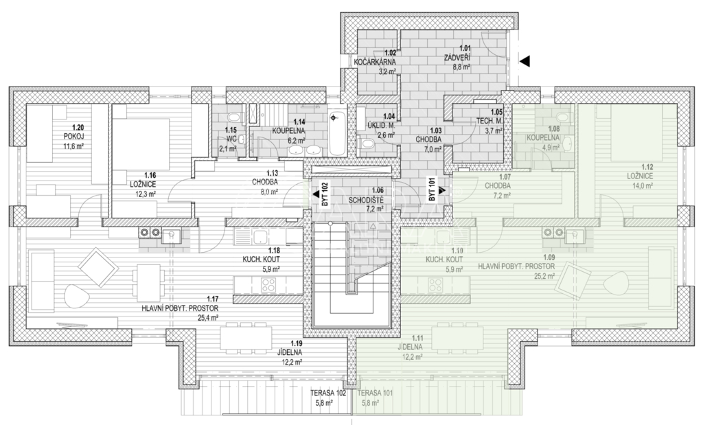
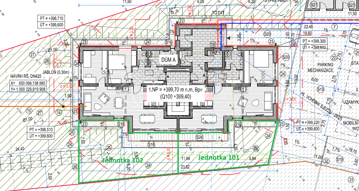
Nabízíme k prodeji moderní a útulný byt 2 + kk 73,8m2 s vlastní terasou a předzahrádkou 56m2 v novostavbě domu v obci Kunčice nad Labem. Nachází se v klidné lokalitě, pouhých 5 minut autem od Vrchlabí, a nabízí jedinečné spojení pohodlí a přírody, s blízkostí lyžařských středisek Herlíkovice a Špindlerův Mlýn, či Černý Důl nebo Janské Lázně v dojezdové vzdálenosti. Byt o celkové ploše 73,8m² (byt)+ 56m2 (předzahrádka + terasa) se nachází v přízemí domu a poskytuje dostatek prostoru pro každodenní rodinný život. Celý prostor s moderní architekturou a příjemným prosvětlením vytváří ideální prostředí pro rodinné chvíle. V bytě je příprava na kuchyňskou linku. S vybavením bytu vám rádi pomůžeme. Pro uložení sportovního či jiného vybavení má byt k dispozici prostorný sklep a parkovací místo pro vůz máte na privátním parkovišti na pozemku před domem. Jedním z největších benefitů této nemovitosti je další rozsáhlá zahrada, kde děti mohou běhat, hrát si a objevovat přírodu, zatímco rodiče mohou trávit čas a užívat si klid a pohodu. Zahrada je dostatečně prostorná pro pořádání rodinných oslav a setkání s přáteli. Dům je vytápěn moderním tepleným čerpadlem, které zajišťuje plný komfort během celého roku. Lokalita nabízí možnosti koupání v Labi, které navazuje přímo na pozemek, což je dokonalá aktivita pro letní dny. A okolí nabízí širokou škálu příležitostí pro výlety a rekreaci v přírodě. Ideální místo pro rodiny hledající bezpečné a přátelské prostředí pro své děti, či vás - sportovně laděné cyklisty, turisty nebo lyžaře. Součástí ceny bytu je parkovací stání a venkovní sklepní kóje umístěná u parkovacích stání. Majitel každého bytu získává v ceně bytu podíl 1/8 na pozemku zahrady přiléhající k domu, velikost každého podílu je cca 400m². V případě zájmu o prohlídku nás neváhejte kontaktovat.


