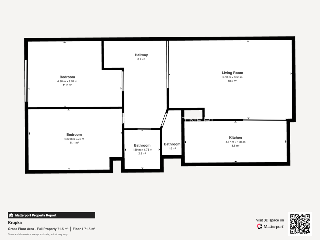
Prodej bytu, 3+1, 68 m²
Prodej DB 3+1 Dukelských Hrdinů 292, Krupka
Nabízím k prodeji družstevní byt 3+1 o celkové ploše 68,5m2, ve 4. nadzemním podlaží v panelovém domě s výtahem. Dispozice bytu je ložnice, pokoj, prostorný a vzdušný obývací pokoj, kuchyň, koupelna a záchod. Byt je v hezkém udržovaném stavu a je vhodný k okamžitému nastěhování bez větších úprav. K bytu náleží sklepní kóje a kočárkárna. Tato lokalita nabízí dobrou dostupnost služeb a občanské vybavenosti v pěší vzdálenosti (Základní škola, střední škola, supermarket, MHD, lékař..). Parkování je možné přímo před domem. Měsíční náklady na bydlení činí 8891,- Pokud budete mít zájem o prohlídku, neváhejte kontaktovat realitního makléře.


