Pronájem bytu, 2+kk, 59 m²
Pronájem bytu 2+kk (59m²) s předzahrádkou, Kroměříž, Zborovská
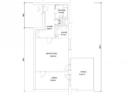
Nabízíme pronájem přízemního prostorného bytu 2kk (59 m2) s předzahrádkou, v bytovém komplexu Zborovská (Dolní zahrady) v Kroměříži. Byt se nabízí vystěhovaný bez vybavení. K dispozici koupelna s vanou, samostatný záchod, kuchyňská linka s varnou deskou a troubou, prostorný obývací pokoj a ložnice. Na prostornou zahrádku (46 m2) je vchod jak z ložnice, tak z obývacího pokoje. Cena měsíčního nájemného 13.500, + energie cca 3.500, (podle počtu osob). Majitel požaduje kauci ve výši 13.500,, odměna RK také 13.500,. Volný od února 2026. Možnost pronájmu privátního parkovacího místa u budovy. Uvedením energetické třídy G plníme zákonnou povinnost energetický štítek nebyl dodán majitelem.


