Pronájem bytu, 2+1, 55 m²
Pronájem bytu 2+1, Moravská, Kroměříž
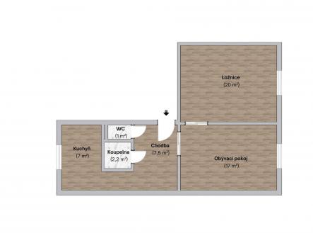
Hledáte místo, kde se budete cítit opravdu doma? Nabízíme k pronájmu byt o rozloze 55 m², situovaný v 1. patře udržovaného panelového domu v oblíbené části Kroměříže – Slovan . Proč si tento byt zamilujete? Z prostorné chodby vstoupíte do kuchyně a obývacího pokoje, který slouží jako srdce bytu a je průchozí do útulné ložnice. Koupelna s vanou a toaleta jsou oddělené, což oceníte při každodenním provozu. Byt je částečně vybavený (sedačka, šatní skříň, vestavěné skříně, lednice i mikrovlnka) – stačí si přivézt pár vlastních doplňků a můžete bydlet! Byt je ideální pro jednotlivce, pracující pár nebo menší rodinu, kteří hledají dlouhodobé a stabilní zázemí. Ihned k nastěhování. Majitel požaduje: nájemné 12000 Kč / měsíc energie 3939 Kč / měsíc vratná kauce 16000 Kč provize 14520 Kč vč. DPH


