Prodej - dům/vila, 500 m²
Prodej vily s bytovými jednotkami, zařízenými ordinacemi, terasami, garáží, bungalovem a zahradou
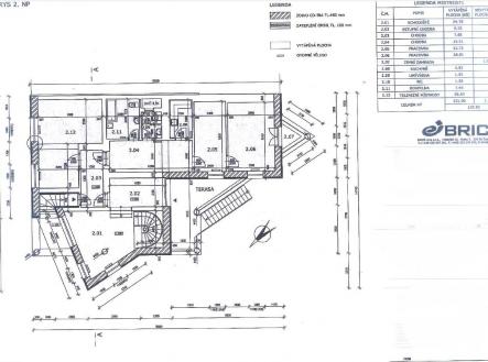
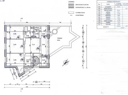
Dovolujeme si vám nabídnout zprostředkování prodeje rodinné vily s krásnou zahradou na náměstí městyse Křižanova. Původní jednopodlažní dům prošel několika přestavbami. Výsledkem je moderní, nadčasový objekt ve stylu neofunkcionalismu. Jednou z předností tohoto třípodlažního podsklepeného domu s velkorysým obytným podkrovím a garáží, který je nyní koncipován jako více generační, je jeho účelová variabilita. Dům je celý podsklepený. Samostatná část sklepních prostor se zvláštním vstupem ze zahrady (50 m2), připravené pro praxi veterinárního lékaře. Prostory 1. NP jsou kompletně vybavené a připravené pro provozování lékařských ordinací, nabízí se tedy varianta podnikání (ordinace/ kanceláře) v kombinaci s luxusním rezidentním bydlením, a nebo investiční záměr s následným pronájmem. Ze vstupní haly je zajištěn oddělený přístup do obytné části domu tak, aby bylo zachováno soukromí majitelů a následně vstup do další části podlaží s nebytovým prostorem, nyní ordinací. V obytné části navazuje předsíň na prostornou obytnou halu s otevřeným vřetenovým centrálním schodištěm propojujícím jednotlivá podlaží. V jižní části domu s orientací do zahrady je přes terasu se schodištěm řešeno propojení s dlážděným nádvořím s venkovním posezením a krbem. 2. NP - byt 3+1 se zimní zahradou o celkové podlahové ploše 118 m2 + 32 m2 terasa. 3. NP byt 3+1 (85 m2 + 7,5 m2 lodžie + 3,5 m2 balkon). Zastavěná plocha domem s nádvořím činí 465 m2, výměra pozemku je 930m2. Rekonstrukce domu byla provedena dle návrhu architektonické kanceláře, kdy byla majiteli požadována celková změna koncepce stávajícího domu na architektonicky zajímavou a moderní stavbu s použitím kvalitních, nadčasových designových materiálů. Součástí kupní ceny je i vybavení domu designovým nábytkem, který splňuje záměr architekta na kvalitu a jednoduchost bydlení. Pečlivě udržovanou okrasnou zahradu navazující na dům odděluje od užitkové zahrady moderní bungalov 60m2, který vznikl rekonstrukcí původní stodoly. Veškerá plocha zahrady včetně skleníku je zavlažována automatickým. Vydatným zdrojem vody je jednak vlastní kopaná studna na pozemku, jednak hlubinný vrt (33 m). Zahrada je oplocena masivní zdí z bílých lícových cihel v kombinaci s kovanými plotovými prvky. Inženýrské sítě: dům je napojen na veřejný vodovodní řad, na pozemku jsou další 2 studny, elektrická energie 230V, 400V, plynová přípojka v 1. PP, rozvod v domě není proveden, splašková i dešťová kanalizace napojena přes septik na veřejnou kanalizaci. Dům je vytápěn el. energií. Zahrada i dům je v perfektním a udržovaném stavu, bez právních vad, vše vymalováno, uklizeno a připraveno k okamžitému prodeji a nastěhování. Více podrobných a technických informací naleznete na webových stránkách RK. Městys Křižanov leží na trase mezi Brnem a Prahou, s výbornou dostupností dálnice D1, vlakové i autobusové spojení. Jedná se o městys s veškerým občanským vybavením, se zajímavými turistickými lokalitami.


