Prodej - dům/vila, 204 m²
Prodej rodinného domu 204 m2, Křešice
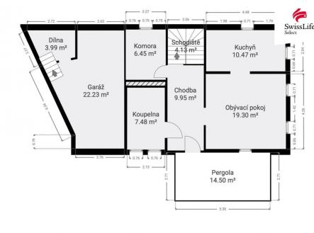
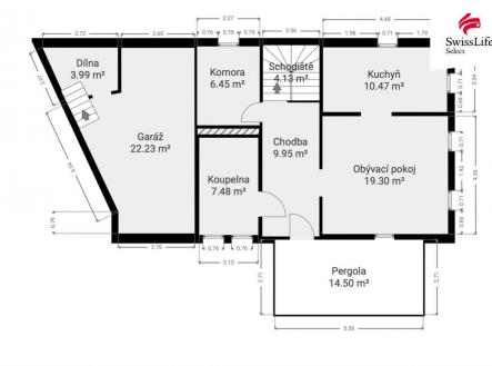
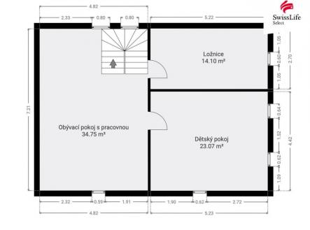
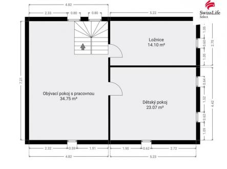
Hledáte místo, kde opravdu můžete dýchat? Kde každý den začíná výhledem do zeleně a končí tichem venkova, přesto kousek od města? Vítejte v Sedleci u Litoměřic v domě, který vás okouzlí nejen prostorem, ale i atmosférou. Tento prostorný, dvoupodlažní dům o dispozici 4+1 (150 m) s garáží, dílnou, zahradou a možností půdní vestavby je ideální volbou pro rodinný život, víkendový únik i investici. Leží na oploceném pozemku o rozloze 770 m v bezzáplavové, klidné lokalitě. Dům prošel poslední rekonstrukcí v roce 2025, je zateplený, má střechu z pálených tašek, dřevěná euro okna, klimatizaci a kamerový a zabezpečovací systém. Stačí se nastěhovat a žít. Vnitřní dispozice: Přízemí: Stylová kuchyň (10,5 m) propojená s jídelnou Obývací pokoj s krbovými kamny (20 m) centrum domácí pohody Koupelna, komora, prostorná chodba Vstup do garáže (22 m) a dílny (4 m) ideální pro kutily Patro: Velkorysý obývací pokoj s pracovnou (35 m) Ložnice (14 m) a dětský pokoj (23 m) Navíc: možnost půdní vestavby (další pokoj, ateliér, studio) Zahrada and pozemek: 540 m zeleně pro odpočinek, zahradničení i zábavu 2 studny + vrtaná studna vlastní, nezávislý zdroj vody Oplocený pozemek, soukromí, klid Výhledy do přírody Technické zázemí: Vytápění: kotel na pelety, rozvod do radiátorů V obýváku: litinová krbová kamna Klimatizace, kamerový systém, zabezpečovací systém Podlahy: kvalitní dřevo + dlažba Satelit,, elektřina Dostupnost: Litoměřice 10 min, Praha 45 min Dálnice D8 do 15 minut Výborná dostupnost i bez rušného okolí dům je v tiché části obce Bezzáplavová zóna bezpečná investice i trvalé bydlení Zaujala vás tato nabídka? Ozvěte se rádi vás domem provedeme a pomůžeme vám představit si, jaký by mohl být váš nový domov. Sedlec vás nadchne klidem i polohou. Těšíme se na osobní setkání! V případě více zájemců o nemovitost, si majitel vyhrazuje právo prodat nemovitost zájemci s nejvyšší nabídkou.


