Prodej - pozemek pro bydlení, 854 m²
Prodej stavební parcely 854 m2, projekt a stavební povolení v ceně, Křečkov
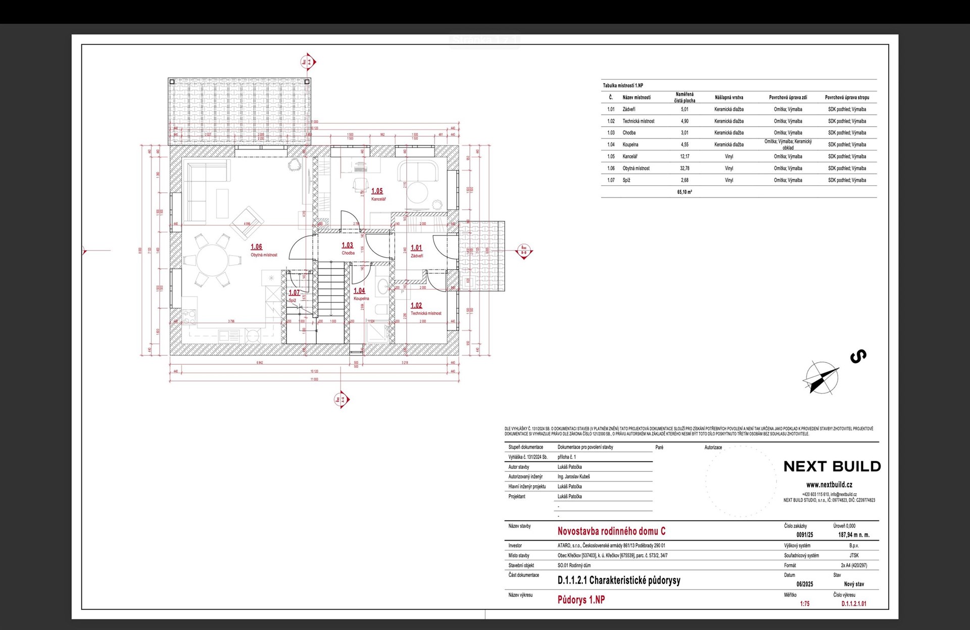
Dovolte mi Vám nabídnout stavební pozemek o ploše 854 m2, nacházející se mezi stávající zástavbou obce Křečkov. Pozemek je součástí jen 4 nových parcel a v průběhu letošního roku bude zasíťován elektřinou, vodovodem a kanalizací. Přístup je také v přípravě a bude po asfaltové obecní komunikaci. Stavět zde dle Územního plánu můžete venkovské bydlení rodinný dům o maximální zastavěné ploše 200 m2 a dvou nadzemních podlaží, nebo jedno nadzemního podlaží a podkroví. Přesně takový dům zde máte vyprojektovaný a schválené stavební povolení. Takže můžete prakticky ihned začít stavět. Pokud by jste si přáli dům jiný, rádi vám pomůžeme se změnou ve stavebním povolení a můžete ihned stavět dům dle svých představ. V křečkově máte k dispozici Obecní Úřad s knihovnou, mateřskou i základní školu a fotbalové hřiště s hospůdkou a hřištěm pro děti. Obyvatelé mohou využít i vinárny a pohostinství se sálem, kde se pořádají plesy, taneční zábavy, oslavy a různá setkání. V obci funguje sbor dobrovolných hasičů a také myslivecký spolek. Vše ostatní najdete v nedalekých Poděbradech.


