Prodej - dům/vila, 650 m²
Prodej dvou domů, ul. Dukelská, Kraslice
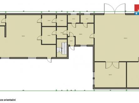
Prodej nemovitosti se dvěma objekty - bydlení + podnikání, Kraslice Nabízíme k prodeji soubor dvou samostatných budov se dvěma čísly popisnými v klidné části města Kraslice. Jedna budova nabízí dvě bytové jednotky vhodné k pronájmu nebo vlastnímu bydlení, druhá je větší objekt ideální jako sklad, dílna, autoservis či provozovna. Díky oddělení objektů lze jednoduše kombinovat podnikání s bydlením nebo investicí. Nemovitost byla v minulosti dlouhodobě pronajímána. Napojeno na vodovod a kanalizaci, vytápění plynovým kotlem, možnost krbu. Velkou výhodou je variabilita využití a potenciál dalšího rozvoje. Pro více informací nebo sjednání prohlídky kontaktujte makléře. S financováním vám pomůže náš hypoteční specialista.


