Pronájem bytu, 1+1, 37 m²
Pronájem bytu 1+1, 37 m2, Králův Dvůr
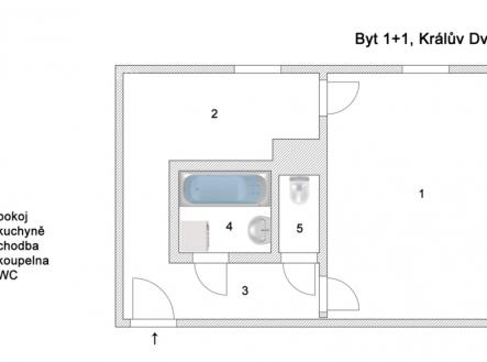
V zastoupení majitele nabízíme dlouhodobý pronájem slunného bytu o dispozici 1+1 v Králově Dvoře, ul. Plzeňská. Tato lokalita je vyhledávaná především pro svou dostupnost k nájezdu na dálnice D5 do Prahy a blízkosti zastávky autobusu. Velkou výhodou je ale především parkování v uzavřeném dvoře a možnost využít zahradu k odpočinku, grilování a posezení. Zařízený byt o velikosti 37 m2 se nachází ve druhém podlaží bytového domu. Obývací pokoj a kuchyně jsou orientovány na jih. Kuchyňská linka je vybavena vestavěnou lednicí, indukční deskou na vaření a mikrovlnnou troubou. V pokoji je velká skříň, dvoulůžko, sedací souprava, jídelní a pracovní stůl. K dispozici je také vstupní chodba, koupelna s vanou a pračkou, a samostatné WC. V blízkosti je obchod, lékárna a pošta, dále základní a mateřská škola a sportoviště. Obchodní centrum se nachází asi 1,5 km. Cena za měsíční pronájem bytu činí 13 000 Kč + poplatky za služby ve výši 1 150 Kč, elektřina a plyn se převádí na nájemce. Odměna RK je 13 000 Kč. Kauce je ve výši 26 000 Kč. Byt je volný od 1. 1. 2026 Zaujala vás tato nabídka? Neváhejte a sjednejte si přesný termín a čas prohlídky. Budu se na vás těšit.


