Prodej - dům/vila, 133 m²
Prodej Chalupa, 133㎡
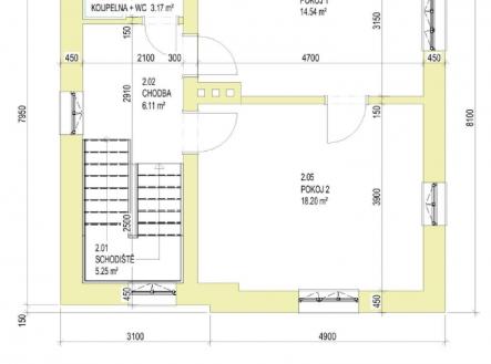
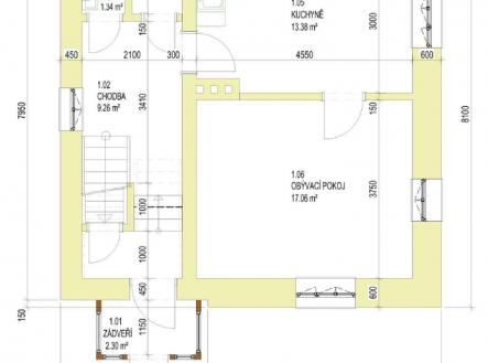
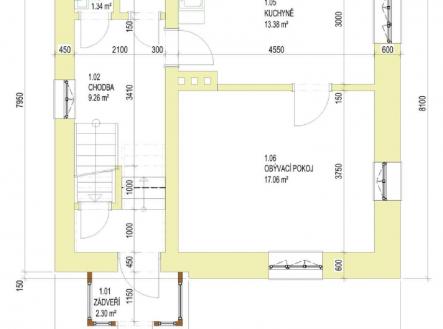
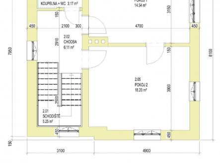
Nabízíme k prodeji půvabnou vilku z roku 1919 (užitná plocha cca 133 m2) s přístavbou (cca 24,32 m2), půdou a se zahradou 1.524m2. Budova byla téměř nepřetržitě obývána a pečlivě udržována. Zastavěná plocha domu je cca 68 m2. Dispozici lze detailněji nalézt na přiložených plánech: • Přízemí (cca 44,9 m2 ): Vstup z ulice přes zádveří do vstupní chodby se schodištěm. Z chodby je přístupné WC, spíž a kuchyň, odkud vedou dveře do obývacího pokoje. • První patro (cca 47,27 m2 ): Z centrálního schodiště a chodby se dostanete do koupelny a do dvou vzájemně propojených pokojů. • Půda: Nezateplená půda nabízí úložné prostory a malý letní pokojík pro přespání. • Suterén (cca 41,55 m2): Tento prostor je částečně nad terénem. Z chodby je přístupná větší místnost (sklep), uklízecí kout s umyvadlem a WC, a také prostor s plynovým kotlem a kombinovaným zásobníkem TUV, kde se nachází pračka. • Přístavba (cca 24,32 m2): Dřevěná nezateplená přístavba sloužící jako zahradní domek, dílna či sklad je přístupná jak z RD, tak ze zahrady. V části dílny se nachází vlastní studna a verandu lze využít pro posezení. Údržba a technické parametry: Dům byl zakoupen v roce 2000 a od té doby prošel řadou rekonstrukcí, včetně výměny střešní krytiny (plechová šablona s imitací tašky)a obnovy fasády mezi lety 2001-2003. Úprava koupelen a kuchyně cca 2005. Topení a ohřev TUV zajišťuje plynový kotel s kombinovaným zásobníkem Dražice (cca 180 l), radiátory s termoregulačními hlavicemi lze ovládat pomocí aplikace. Většina vedení již v měděných trubkách. Objekt je napojen na obecní vodovod a kanalizaci, má také vlastní studnu pro zalévání zahrady. Plyn zaveden. Venkovní okna budou vyžadovat výměnu, jinak je objekt v dobrém technickém stavu. Dům si zachoval atmosféru starších ač idylických časů a většinu původních prvků, jako jsou vnitřní dveře, špaletová okna, prkenné podlahy aj. Místnosti jsou díky původnímu tvaru oken dostatečně prosvětlené. Zahrada: Součástí domu je rozlehlá stinná zahrada s množstvím ovocných stromů a keřů (jabloně, třešně, hrušně, slivoně, rybíz, maliny, angrešt, ostružiny, mišpule, muchovník, áronie, dřín) a okrasných rostlin (pivoňky, růže, floxy, bohyšky, kakosty). Lokalita: V okolí najdete veškeré služby (obchody, ZŠ, MŠ, lékaře, restaurace). V Králíkách se nachází nový sportovní areál a koupaliště, plánuje se výstavba nové sportovní haly. Okolní příroda nabízí možnosti cykloturistiky a běžkování. V blízkosti je poutní areál Hora Matky Boží a odpočinkový areál Dolní Morava, přehrada na Pastvinách je vzdálena 21 km. Dům je ideální pro trvalé bydlení, rekreaci nebo i případně pro pronájem. Financování zajistíme s naším prověřeným specialistou - řešení v podobě nezávislé konzultace se zkušenou hypoteční konzultantkou s péčí připraví hypotéku přesně na míru vašim potřebám. Přijďte na prohlídku! Pro komunikaci uvádějte evidenční číslo zakázky N111132.
NEXT REALITY BAHENSKÝ&PARTNEŘI


