Prodej - chata/rekreační objekt, 96 m²
Prodej chalupy, 96 m², Kovářská, ul. Mlýnská
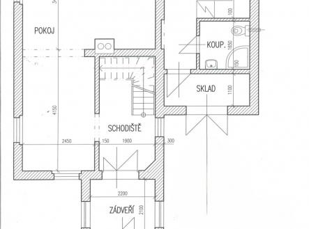
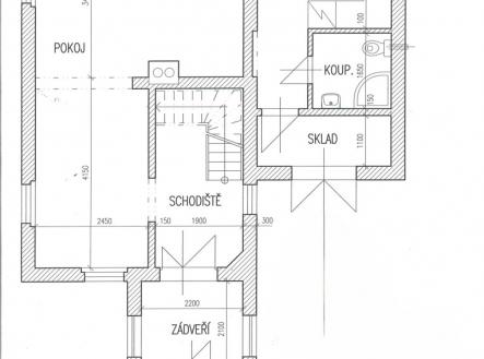
Nabízíme k prodeji útulnou chalupu v klidné části obce Kovářská. Tato samostatně stojící nemovitost je ideální volbou pro ty, kteří hledají klidné útočiště mimo městský ruch. Chalupa je smíšené konstrukce a nabízí dvě nadzemní podlaží s celkovou užitnou plochou 96 m². Dispozice zahrnuje čtyři prostorné místnosti, které poskytují dostatek místa pro rodinné chvíle i soukromí. Pozemek mírně svahovitý a svou výměrou činí 271 m² je ideální pro zahradní aktivity nebo relaxaci na čerstvém vzduchu. Stav nemovitosti je dobrý, což umožňuje okamžité užívání nebo drobné úpravy podle vašich představ. Chalupa se nachází v atraktivní lokalitě s krásnou okolní přírodou, vhodnou pro turistiku a rekreaci. Nezmeškejte tuto jedinečnou příležitost a domluvte si prohlídku ještě dnes!


