Prodej - dům/vila, 124 m²
Prodej moderní dřevostavby 5+kk, 124m2 - Kouřim
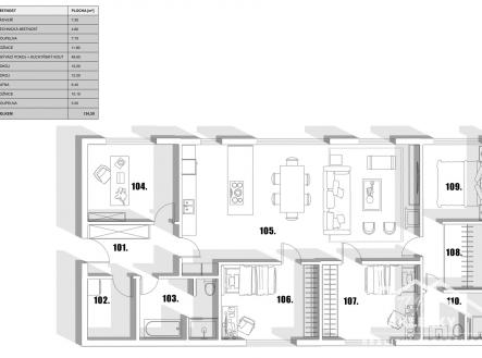
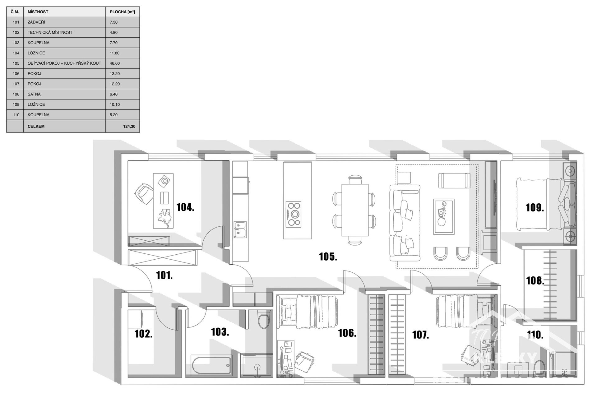
Nabízíme Vám ke koupi výjimečnou novostavbu, rodinný dům s dispozicí 5+kk s dvěma koupelnami, rozsáhlou zahradou a stáním pro dvě auta. ODKAZ NA VIRTUÁLNÍ PROHLÍDKU: 3D 360 https://kuula.co/share/collection/7MhSp?logo=0&info=0&fs=1&vr=1&sd=1&initload=0&thumbs=1 Moderní dřevostavba s důrazem na kvalitu, energetickou úspornost a přírodní materiály, je postavena z KVH hranolů, konstrukčních desek se skelným vláknem a hustým jádrem a difúzně otevřenou, provětrávanou fasádou ze sibiřského modřínu. Velkoformátová okna v každé místnosti zajišťují potřebné množství denního světla. O požadovaný tepelný komfort se stará podlahové vytápění v kombinaci s tepelným čerpadlem vzduch-voda, které zvládne topit i chladit. Kolaudace proběhla v únoru 2026. ARCHITEKTURA A DISPOZICE Užitná plocha: 124 m² Zastavěná plocha: 146 m² Pozemek: 1 312 m² Typ domu: jednopodlažní, nepodsklepený Dispozice: 5+kk Důmyslná dispozice je řešena efektivně – bez slepých a nevyužitelných spojovacích chodeb. V každém pokoji je počítáno s prostorem pro vestavěnou skříň, přičemž další úložné prostory se nachází v podkroví se dvěma samostatnými vstupy. Vstup tvoří praktické zádveří navazující na technické zázemí domu, hlavní koupelnu s toaletou a jeden pokoj. Dominantou domu je pak velkorysý obývací prostor s kuchyní a jídelnou se vzdušným otevřeným stropem do krovu. Součástí tohoto prostoru je stylový komín s přípravou pro instalaci krbových kamen, která budou sloužit jako designový prvek, k navození romantické atmosféry a zároveň funkční, bivalentní zdroj, který je schopen pokrýt primární potřebu tepla domu. Přímo z hlavního obývacího prostoru je vstup do dalších dvou pokojů a zadní části domu, kterou tvoří klidová zóna, ložnice s vlastní šatnou a samostatnou koupelnou s toaletou. KONSTRUKCE A TECHNICKÉ ŘEŠENÍ • Odvětrávaná podkladní vrstva pod základovou deskou jako efektivní opatření proti pronikání radonu z podloží • Nosné I nenosné konstrukce ze sušených, hoblovaných KVH hranolů • SDK desky RigiStabil se speciálním jádrem vyztuženým skelnými vlákny, s možností bodového mechanického zatížení až 80 kg • Izolace z minerální vlny • Difúzně otevřená skladba konstrukcí • Provětrávaná fasáda ze sibiřského modřínu • Velkoformátová okna Inoutic s trojskly a nízkým součinitelem prostupu tepla Energetická náročnost budovy: třída B – velmi úsporná. TECHNOLOGIE A ENERGETIKA • Síťové napájení 400 V / 25 A • Voda a kanalizace napojena na městský rozvod • V každém pokoji rozvod STA, DATA, WiFi repeater a příprava pro EZS a noční světlo • Tepelné čerpadlo vzduch–voda Panasonic schopné topit i chladit • Teplovodní podlahové vytápění Rehau – 10 samostatně regulovatelných zón • Rozvod vody v systému Rehau Rautitan • Teplá voda s cirkulací • Zásobník TUV Dražice 250 l • Fotovoltaická elektrárna 2,7 kWp, sloužící výhradně k ohřevu teplé vody, pokrývá téměř celoroční potřebu • Tlaková kanalizace Presskan • Retenční nádrž na dešťovou vodu 6 m3 ZAHRADA Mírně svažitý pozemek o velikosti 1 312 m² se vzrostlými plodícími stromy (jabloně, hrušně, ořechy), které zadržují vláhu na pozemku a v horkých letních dnech zajišťují chladivý stín, poskytuje dostatek prostoru pro relaxaci i vlastní zahradní projekty. Zahradní domek pro uskladnění techniky či hobby zázemí. LOKALITA Klidná část středočeského města Kouřim, cca 1 km od centra, v těsné blízkosti Skanzenu - Muzea lidových staveb, s málo pravděpodobnou další výstavbou v těsném okolí. Dostupnost: • Kostelec and Černými lesy – cca 10 min • Český Brod – cca 15 min • Kolín – cca 20 min • Říčany – cca 25 min • Praha – cca 30 min CO ZBÝVÁ DOKONČIT • Jedna koupelna (obklady, dlažba, sanita částečně k dispozici) • Instalace odtahových ventilátorů z koupelen • Instalace vnitřních dveří • Dopojení zadních svodů do retenční nádrže • Dokončení dlažby parkovacího stání a chodníčku • Terasa, oplocení a příp. terénní úpravy V prezentaci je k dispozici 2D a 3D půdorys s výměrami a vizualizace, pro inspiraci. Pokud hledáte nový domov pro svou rodinu a chcete kvalitní, nízkoenergetický dům v klidné lokalitě, tak se na mě můžete obrátit. Ráda Vám poskytnu více informací k této nemovitosti a provedu Vás na osobní prohlídce.

