Prodej - dům/vila, 121 m²
Prodej novostaveb 5+KK v obci Kostice u Břeclavi
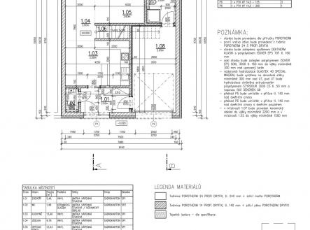
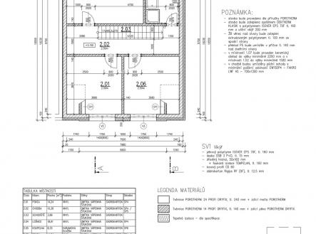
Připravujeme prodej novostaveb 5+KK v obci Kostice u Břeclavi– moderní bydlení s garáží a zahradou. Hledáte klidné, moderní a úsporné bydlení kousek od přírody i města? V obci Kostice u Břeclavi pro vás připravujeme nové rodinné domy s dispozicí 5+KK, vlastní zahradou a garážovým stáním. Ideální volba pro rodinný život v Jihomoravském kraji! Stavbu bude provádět firma TESGRUP. Klíčové informace: - Zděná novostavba 5+KK - Užitná plocha 121 m² - Kryté garážové stání o velikosti 17 m² - Soukromá zahrada pro relaxaci i volný čas - Tepelné čerpadlo – nízké provozní náklady - Teplovodní podlahové topení v celém domě - Kvalitní zděná konstrukce - Kolaudace plánována na konec roku 2026 Standarty: Koupelny jsi vyberete ve studiu Ptáček Podlahy vinylové - RIGID Dveře - Doornite Tepelné čerpadlo - Podlahové vytápění Lokalita Kostice nabízí skvělé místo pro život – klidná vesnická atmosféra, přitom výborná dostupnost do Břeclavi (10 min), Hodonína nebo na dálnici D2 směr Brno/Bratislava. V okolí je krásná příroda, cyklostezky, školy i veškerá občanská vybavenost. Zaujala vás tato nabídka? Kontaktujte nás pro více informací. Počet domů je omezen! Za kancelář Dáme domov s.r.o., Roman Krist


