Pronájem - dům/vila, 147 m²
Pronájem novostavby rodinného domu 4kk s terasou a zahradou, ul. K Jahodovce, Kostelec nad Labem
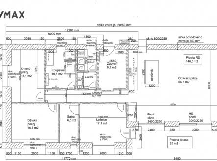
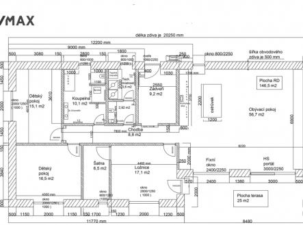
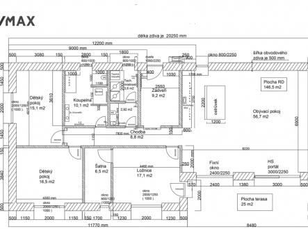
V exkluzivním zastoupení majitele nemovitosti Vám nabízíme dlouhodobý pronájem novostavby samostatného rodinného domu o dispozici 4+kk a užitnou plochou domu 146,5 m2, v obci Kostelec n/L. Součástí pronájmu je RD, půda přístupná s chodby, terasa u domu, zahrada, zahradní domek, zpevněné plochy včetně parkovacího stání, oplocení, branka a vjezdová brána. Rodinný dům Vám nabízí velmi prostornou vstupní chodbu včetně luxusní vestavěné šatní skříně a botníkem vyrobené na míru, samostatnou toaletu se vstupem do technické místnosti s tepelným čerpadlem, místem na pračku, sušičku a úklidové prostředky. Dále velmi atraktivní koupelnu se sprchovým koutem, vanou, toaletou a dvoj umyvadlem s kosmetickou skříňkou a zrcadlem. Niky v obkladu koupelny tvoří praktický i designový prvek. Tato koupelna je praktická, maximálně prosvětlená a nabízí dostatek místa pro odpočinek i úložné prostory. V domě naleznete tři samostatné neprůchozí ložnice, z toho hlavní ložnice 17 m2 má svou vlastní šatnu 6,5 m2. Dominantou nemovitosti je obývací pokoj s kuchyňským a jídelním koutem. Kuchyně je vybavena moderními vestavěnými spotřebiči zn. Electrolux včetně myčky, indukční varné desky a velkoobjemové lednice s mrazákem. Obývací pokoj s jídelním a kuchyňským koutem tvoří jeden otevřený prostor, kde jednotlivé zóny plynule navazují a celek působí maximálně prostorně, nadčasově a vzdušně. Celý interiér je laděn v moderních tónech, které podporují pocit tepla. Prostor je ideální pro rodinný život i relaxaci, s důrazem na funkčnost, estetiku i propojení s exteriérem. Z obývacího pokoje naleznete vstup na terasu a zahradu. V oknech a balkónových dveří do zahrady jsou instalovány venkovní žaluzie, které zajišťují soukromí. Součástí pronájmu je kompletní osvětlení a sedací souprava. Nemovitost je řešena s důrazem na světlost, prostor a eleganci. Dům je bez předchozího užívání, čeká na prvního nájemce a již probíhají dokončovací práce (zahradní domek zakoupen, branka a brána cca konec ledna, zatravnění pozemku atd). Výplně plotu a podlahové lišty jsou již namontovány. Měsíční náklady na bydlení: - nájemné ve výši 45.000,- Kč - záloha elektřina/ doporučená záloha cca 5 - 6 tis. Kč dle počtu osob a vlastní spotřeby, elektřina se převádí na nájemce u společnosti ČEZ - záloha vodné a stočné ve výši 300,- Kč/osoba Internet, TV a rozhlasové poplatky si řeší nájemce individuálně. Nájemce je povinen zřídit si pojištění odpovědnosti. Dům k dispozici ihned. Rodinný dům je postaven v klidné části města s kompletní občanskou vybaveností a výbornou dostupností do Prahy, autobusové zastávky (bus č. 377 Letňany, 471, 476 Neratovice, 478 Brandýs nL). V docházkové vzdálenosti MŠ, ZŠ, pošta, zdravotní středisko, lékárna, Jídelna na Marjánce s potravinami, TJ Sokol a rozsáhlé dětské hřiště. Dále také Penny Market, ostatní potraviny, obchody, restaurace, cukrárna, galanterie atd. a vysoká nabídka služeb. Chcete si prohlédnout nemovitost, potřebujete více informací, neváhejte nás kontaktovat.


