Prodej - dům/vila, 682 m²
Rezidence Pražská č.p.109, Kostelec n/Č.l., ČPP 576m2
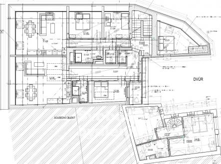
Nabízíme Vám ke koupi atraktivní developerský projekt v centru města Kostelec nad Černými lesy, včetně platného stavebního povolení. Záměrem projektu je rekonstrukce současného domu v centru města na bytový dům, obsahující osm bytových jednotek a jeden ateliér. Celková podlahová plocha realizovaných jednotek činní 576 m2. Užitná plocha projektu činní cca 682 m2. Navrženými stavebními úpravami vzniknou jednotky o dispozicích: 2x 2+kk, 4x 3+kk, 1x 1+1, 1x 4+kk, 1x ateliér. SP umožňuje realizaci výstavby ve 3 fázích. V projektu se počítá s kompletní rekonstrukcí stávajícího domu tak, aby byl zajištěn maximální komfort a moderní standard všem novým majitelům/nájemníkům budoucího BD. V současnosti je objekt ve stavu ke kompletní rekonstrukci, disponuje 3-mi bytovými jednotkami a komerčním prostorem s výkladcem do hlavní ulice Pražská. Je vyklizen a připraven pro okamžité zahájení stavby. Město Kostelec nad Černými lesy je atraktivní a vyhledávanou lokalitou pro investory i pro koncové zákazníky, kteří vyhledávají bydlení pro své vlastní potřeby či za účelem dalšího nájmu. Díky rekonstruovanému zámku, místnímu vyhlášenému pivovaru, rychlé dostupnosti do Prahy a dostačující občanské vybavenosti se jedná o místo s dostatečnou poptávkou po moderním dostupném bydlení, čímž poskytuje potenciál pro velmi výhodnou investici ve formě tohoto projektu. Pro další informace a sjednání termínu prohlídky neváhejte kontaktovat makléře.


