Prodej - obchodní prostor, 250 m²
Prodej komerčního objektu Kostelec nad Černými lesy
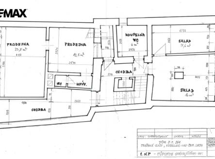
Ve výhradním zastoupení nabízíme k prodeji historický dům přímo ve středu města Kostelec nad Černými lesy, počátek stavby byl zahájen v roce 1841. Dům se nachází přímo na náměstí a lze jej využít ke komerčním účelům a zároveň i k bydlení. Jedná se o památkovou zónu s velkým potenciálem pro podnikání. V přízemí se nyní nachází večerka, zadní část přízemí je momentálně nevyužívána – lze využít jako skladovací prostor, nebo případně zvětšit a rozšířit stávající prodejnu. V horní části domu se nachází dvě bytové jednotky – jedna je obývána majiteli večerky, druhá bytová jednotka je prázdná. Každý z bytů má samostatný odběr elektřiny i samostatný vchod. V půdních prostorech se nachází bývalý ateliér a půda. Dům je podsklepený, ve sklepě je vlastní studna. Zaparkovat lze bezproblémově za domem. Objekt vyžaduje rekonstrukci včetně střechy. Budoucího majitele čekají stavební úpravy, které se však rychle mohou díky potenciálu domu zúročit. Objekt je napojen na kanalizaci a obecní vodovod. Dispoziční řešení: Přízemí: Prodejna, chodba, sklad k prodejně, sociální zařízení, koupelna 1. Patro Byt 1: Kuchyň, obývací pokoj, pokoj, ložnice Byt 2: Kuchyň, obývací pokoj, pokoj, koupelna + sklep a půdní prostory. Výměra vnitřních prostor je orientační, překreslené půdorysy budou do inzerátu ještě dodatečně vloženy. Lokalita Kostelce nad Černými lesy je vyhledávaná pro svou plnou občanskou vybavenost, která zahrnuje školy, obchody, restaurace a další služby. Díky skvělému dopravnímu spojení do Prahy, Kolína a Kutné Hory je tato nemovitost ideální pro podnikatelské záměry s možností vlastního bydlení. Nemovitost není zatížena hypotečním úvěrem ani jiným právním omezením. V případě zájmu o prohlídku mě neváhejte kontaktovat. Prodávající si vyhrazuje právo vybrat kupujícího na základě jím zvolených kritérií.


