Prodej - dům/vila, 100 m²
Rodinný dům nebo chalupa, Kostelany - Újezdsko
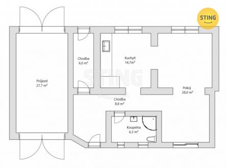
S výhradním souhlasem majitele nabízíme ke koupi rodinný dům v klidné části obce Kostelany - Újezdsko. Dům má v současné době k dispozici vstupní chodbu, obývací pokoj, jehož součástí je jídelna a spací část. Dále pak také koupelnu a WC. V půdním prostoru majitel zahájil rekonstrukci. Z obývacího pokoje (spací části) lze vejít na dvůr, rovněž tak ze vstupní chodby. Na dvoře je dostatek prostoru pro vybudování terasy či posezení dle vlastních potřeb. Dvorní část je oddělena hospodářskou budovou, do tvaru písmene L, kterou lze využít pro úschovu pracovního nářadí či jako dílnu. Za hospodářskou budovou je oplocená zahrada s ovocnými stromy. Další výhodou této nemovitosti je průjezdné návratí, lze si tak dovést stavební materiál do dvora. Do konce prosince 2025 nabízíme prostřednictvím našeho partnera úrokové sazby od 4,29 % p.a. Více informací Vám sdělí náš specialista na prohlídce.


