Prodej - dům/vila, 350 m²
Rodinný dům s velkým pozemkem a bazénem – Košátky
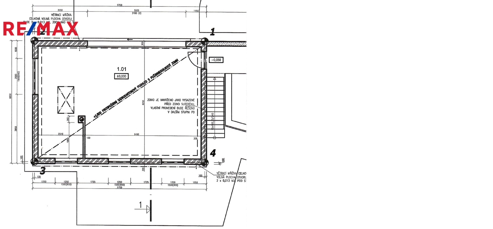
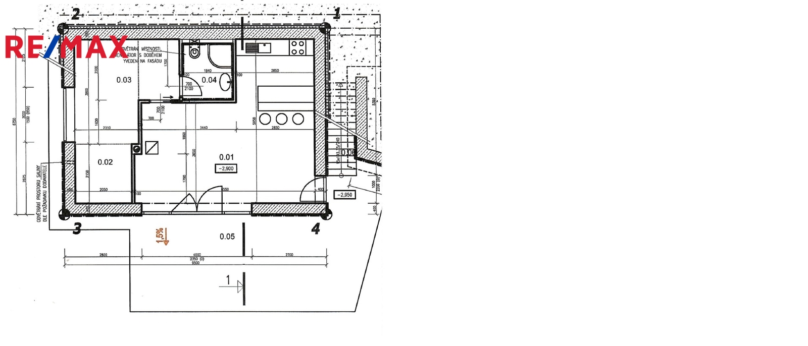
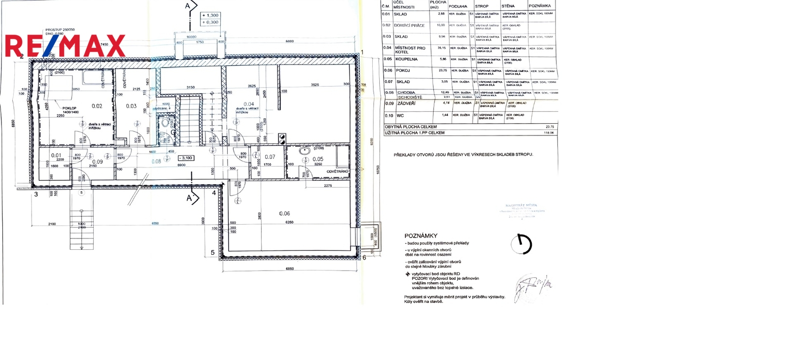
Nabízíme k prodeji prostorný patrový rodinný dům o užitné ploše cca 350 m² v obci Košátky, postavený na rozsáhlém pozemku 3 497 m², z větší části stavebním. Dům je v dobrém technickém stavu, napojen na veřejný vodovod, kanalizaci a elektřinu, disponuje vlastní studnou. Dispozice: Suterén – chodba, prádelna + technická místnost, spíž, WC, technická místnost, pokoj s koupelnou, dílna s venkovním přístupem. Přízemí – předsíň, chodba, dva pokoje, WC, obývací pokoj s kuchyní, terasa. Podkroví – ložnice s šatnou, dva pokoje, koupelna, WC, chodba a vstup na půdu. Součástí domu je velká terasa s nádherným výhledem, bazén a vedlejší stavba – v přízemí budoucí venkovní posezení s krbem, v patře prostorná garáž. Vytápění zajišťuje kotel na pelety, ohřev vody elektrický bojler, na střeše jsou solární panely s bateriovým úložištěm (2 roky staré). Dům má eurookna, alarm a v podkroví klimatizaci. Přístup je zajištěn z obecní komunikace. Tento dům nabízí komfortní bydlení v klidném prostředí, ideální pro rodinu či rekreaci s dostatkem soukromí a prostoru. Obec Košátky leží v okrese Mladá Boleslav ve Středočeském kraji, přibližně 30 km jižně od Mladé Boleslavi a 35 km od Prahy (snadná dostupnost po dálnici D10). V obci žije přibližně 400 obyvatel, panuje zde klidná venkovská atmosféra, okolí tvoří lesy, louky a zemědělská krajina. Nachází se zde základní občanská vybavenost (obecní úřad, vlaková zastávka, zastávka autobusu) v Byšicích je ZŠ, MŠ a obchody či Mladé Boleslavi je kompletní městská infrastruktura — školy, školky, obchody, služby i kultura. Košátky jsou vyhledávanou lokalitou pro klidné bydlení v dosahu města. Klíčové výhody: • Pozemek 3 497 m² (většina stavební) • Užitná plocha domu přes 300 m² • Velká terasa, bazén, garáž • Solární systém s bateriemi • Vlastní studna • Malé měsíční náklady (cca do 10tis/měs) • Klidná lokalita, výborná dostupnost Prahy a Mladé Boleslavi Prohlídky se budou konat po předchozí telefonické či e-mailové dohodě. Dovolujeme si upozornit, že v případě více vážných zájemců může být nemovitost prodána nejlepší nabídce.


