Prodej - dům/vila, 601 m²
Prodej rodinné usedlosti (1134 m²) – Kořenec, Blanensko
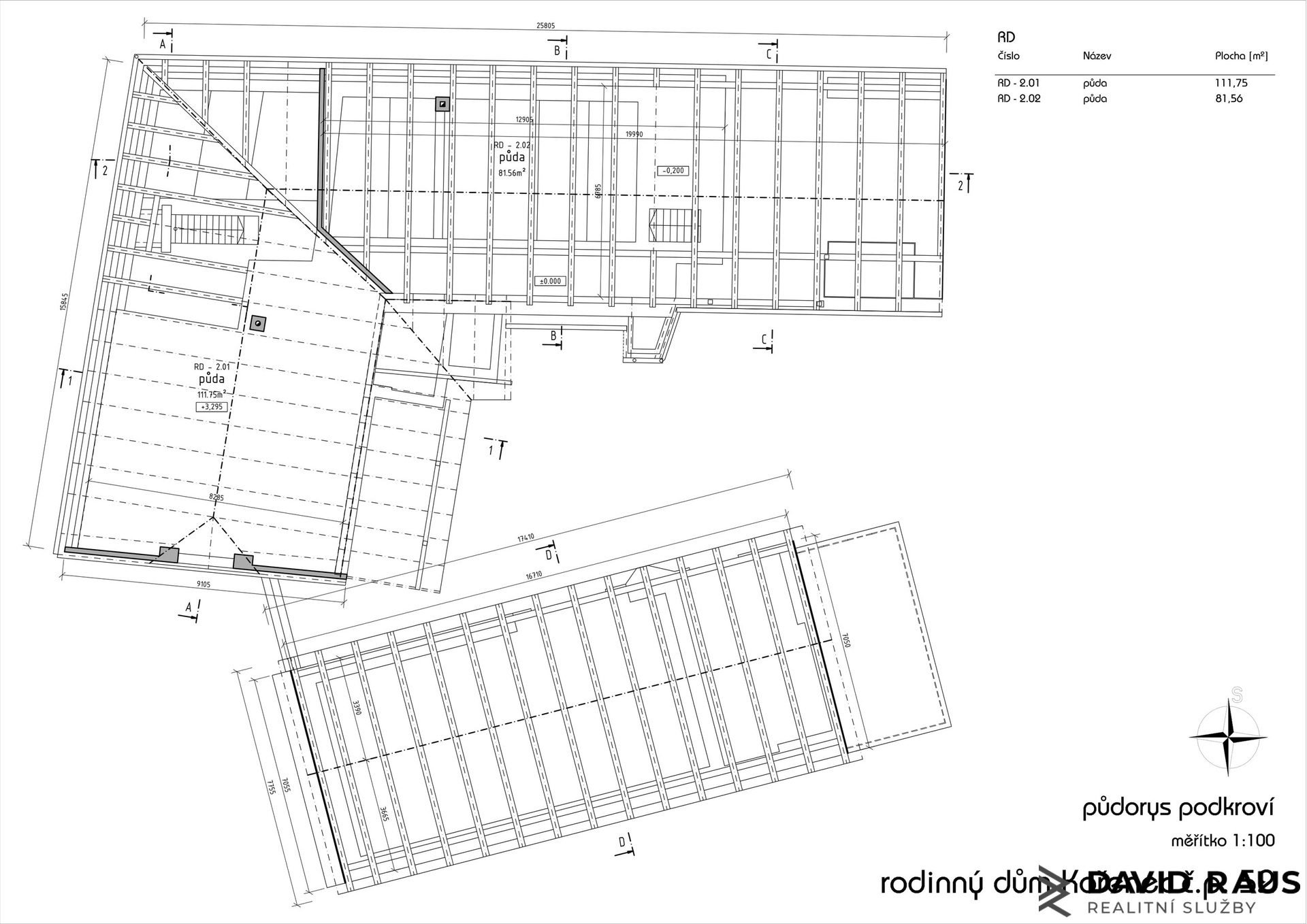
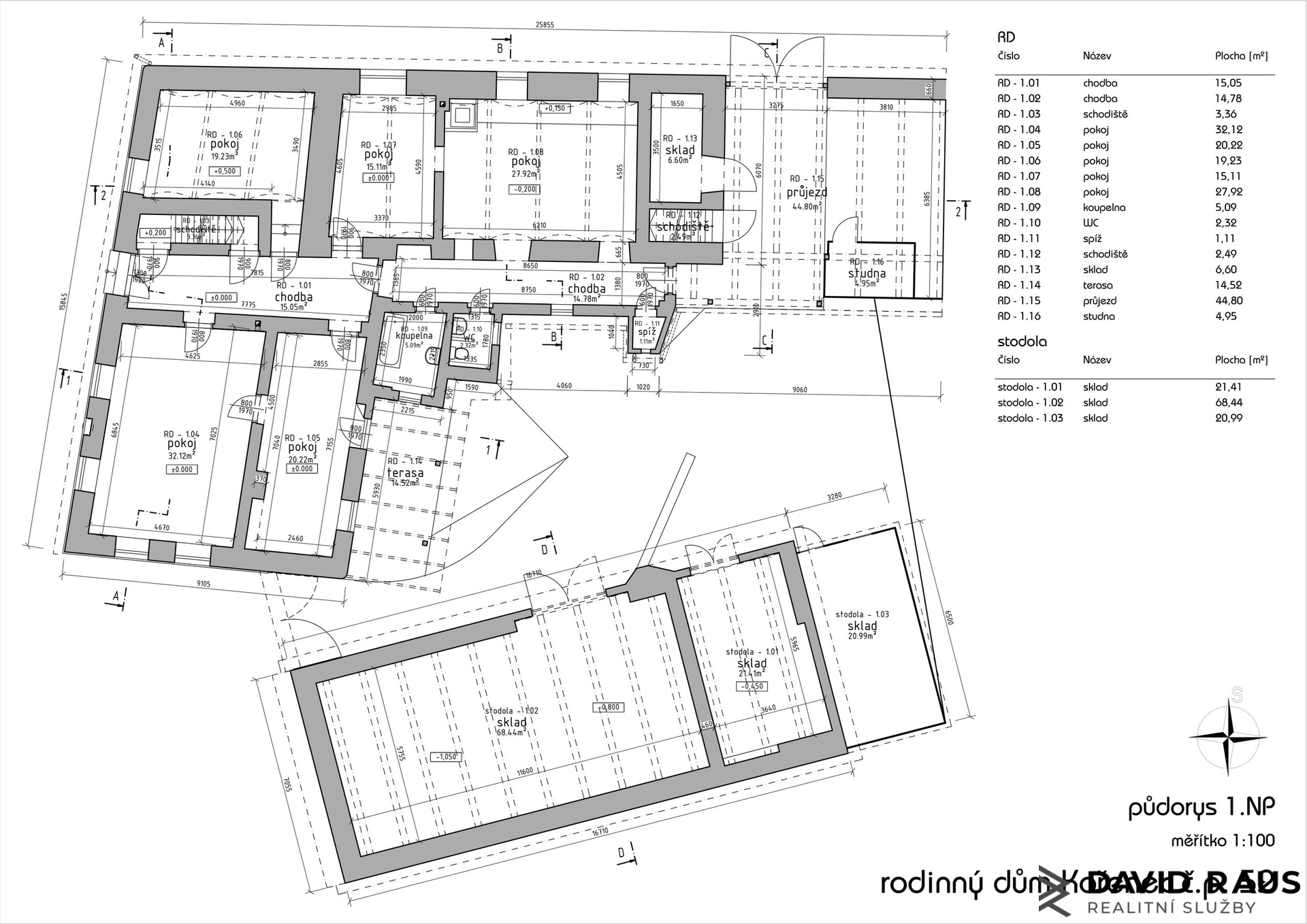
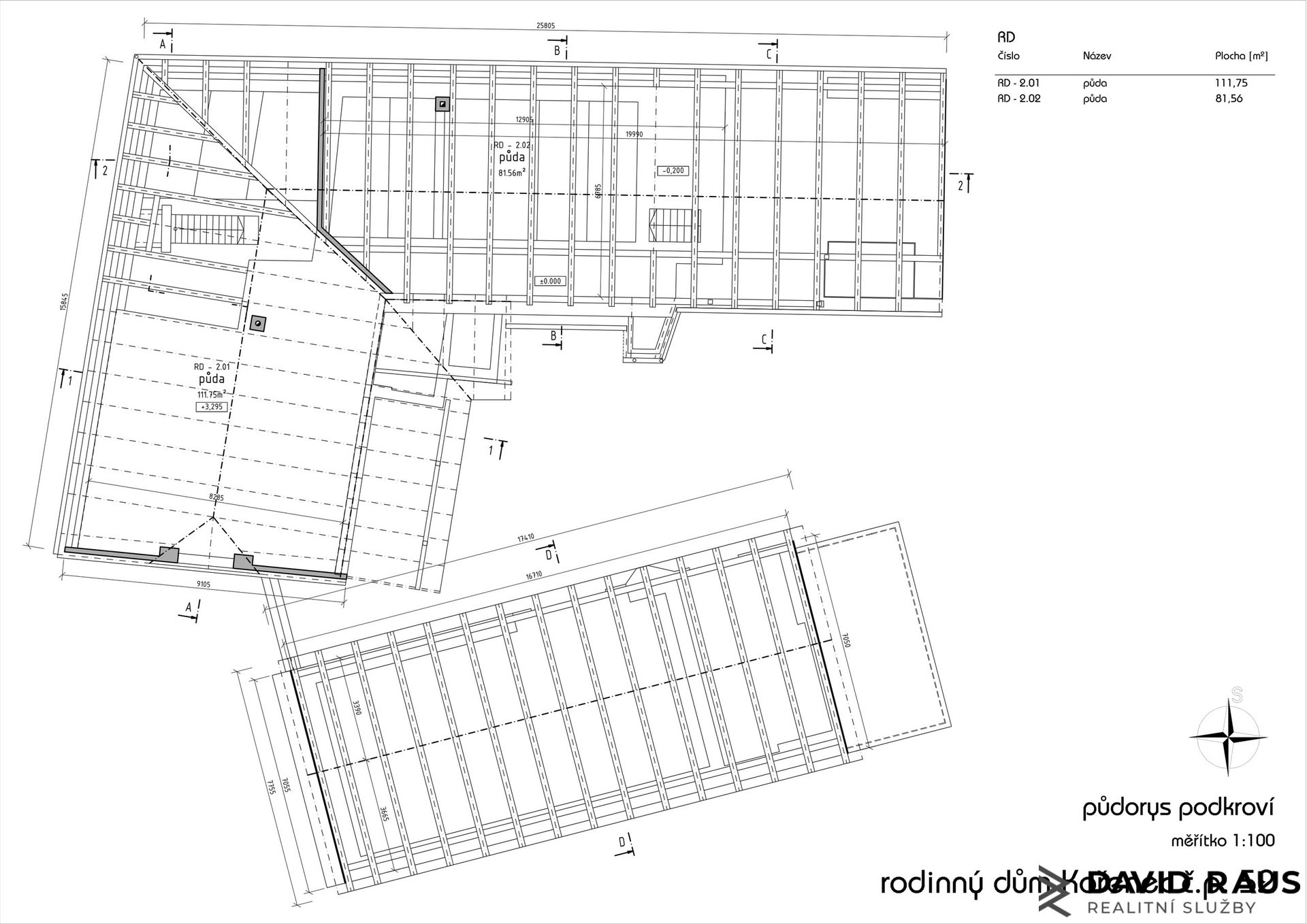
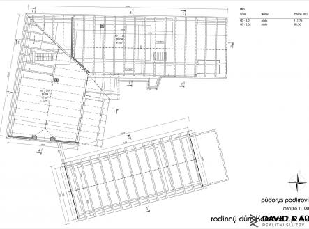
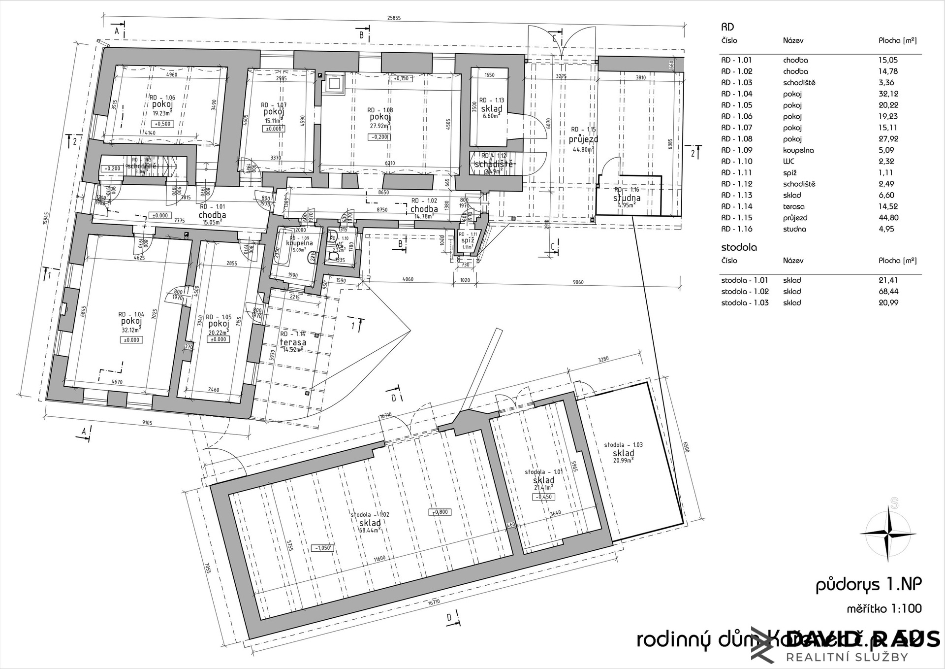
Nabízíme k prodeji rodinnou usedlost v malebné obci Kořenec na Blanensku. Objekt s původním venkovským kouzlem a zachovalou střechou představuje ideální příležitost pro ty, kteří hledají nemovitost s duší a velkým potenciálem k vlastnímu dotvoření. Součástí prodeje je také hotová dispoziční studie pro přestavbu usedlosti na apartmánový dům. Dispozice a stav: Hlavní obytná část se skládá z několika samostatných místností a dvou průchozích pokojů, z nichž jeden disponuje krbovými kamny a přímým vstupem na terasu a do nádvoří. Nechybí ani základní sociální zázemí. V domě byla započata rekonstrukce – interiér je kompletně vyklizený, původní podlahové krytiny byly odstraněny a odhalena byla podlaha z masivních dřevěných prken. Střecha je ve velmi dobrém stavu, část krytiny byla již vyměněna. Přilehlé hospodářské části jsou vyklizené a nabízejí široké možnosti využití – ať už jako zázemí pro podnikání, ateliér, dílnu, či pro rozšíření obytných prostor. Možnosti využití: Nemovitost je vhodná k přestavbě na rodinné bydlení, ale díky své velikosti a dispozicím nabízí také možnost vytvořit apartmánový dům pro rekreační účely, například dle zhotovené dispoziční studie. Původní charakter usedlosti lze citlivou rekonstrukcí skloubit s moderním stylem, čímž vznikne atraktivní prostor k bydlení i podnikání. Obec Kořenec se nachází v okrese Blansko, v krásném přírodním prostředí Drahanské vrchoviny, nedaleko Moravského krasu. Místo je vyhledávané pro svůj klid, čistý vzduch a bohaté možnosti volnočasového vyžití. V okolí se nachází značené turistické i cyklistické trasy, které vedou malebnou krajinou. Kořenec je známý také svým 18jamkovým golfovým hřištěm, které patří k nejvýše položeným v České republice a nabízí jedinečné výhledy do okolní krajiny. Obec disponuje základní občanskou vybaveností, další služby jsou dostupné v nedalekém Boskovicích. Tato usedlost představuje výjimečnou investiční příležitost v klidné lokalitě s dobrou dostupností. Je ideální pro milovníky venkova, kteří hledají prostor k vlastnímu bydlení, rekreaci či podnikání. Základní informace: • Lokalita: obec Kořenec, okres Blansko, Drahanská vrchovina • Typ nemovitosti: usedlost s obytnou částí a hospodářskými prostory • Stav: započatá rekonstrukce, vyklizeno, připraveno k dalším úpravám • Celková plocha pozemku: 1134 m² • Zastavěná plocha : 601 m² • Možnost využití: rodinné bydlení, apartmánový dům pro rekreaci, podnikání • Okolí: příroda Drahanské vrchoviny, turistické a cyklotrasy, golfové hřiště v Kořenci Více informací u makléře. Nabízím možnost zajištění financování. Veškerý právní servis zajištěn.


