Prodej - dům/vila, 767 m²
Prodej rodinného domu, 767 m², Konstantinovy Lázně
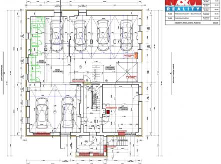
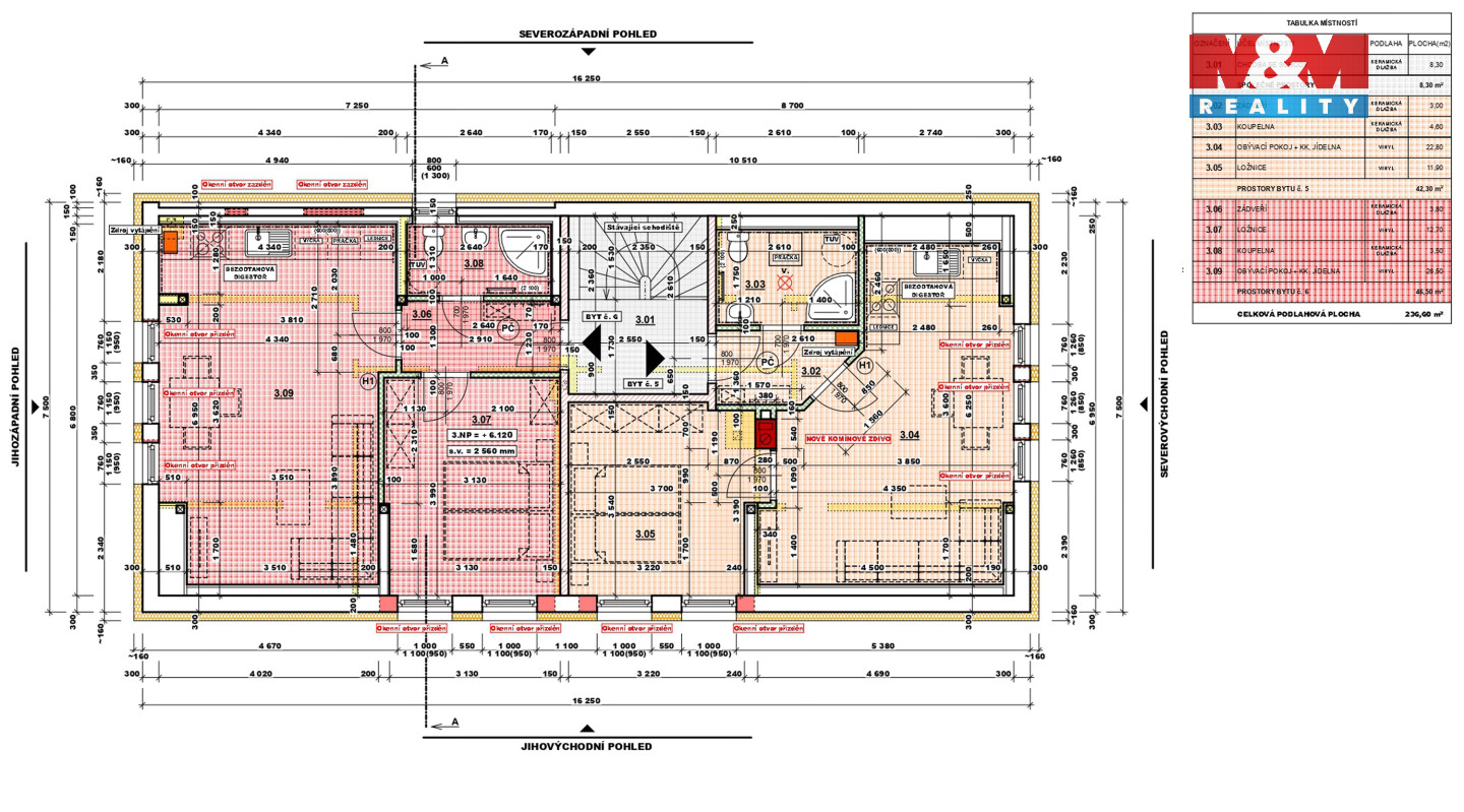
Prodej investičního rodinného domu po rekonstrukci v Konstantinových Lázních v klidné části obce. Tento samostatně stojící dům s užitnou plochou 767 m² má tři nadzemní a jedno podzemní podlaží. V domě se nachází 14 obytných místností, z nichž jsou všechny byty vybavené koupelnami a kuchyňskými linkami. Každý byt má vlastní elektrokotel a bojler na teplou vodu. Ve spodním patře je možnost vytvoření garáží, sklepů či komerčních prostor. Dům je zateplen polystyrenem o šířce 16cm a disponuje elektrickými garážovými vraty a též parkováním u domu. Napojení domu na kanalizaci a obecní vodu. Výborná občanská vybavenost včetně ZŠ a MŠ, lázeňské prostředí. Dojezd do měst autem Plzeň 40 min a Mariánské Lázně 37 min. Velice zajímavá investice! Pro více informací k nemovitosti a domluvu prohlídky kontaktujte makléře.


