Pronájem bytu, 3+kk, 64 m²
Pronájem prostoru 3+kk - 64 m2, Kolín
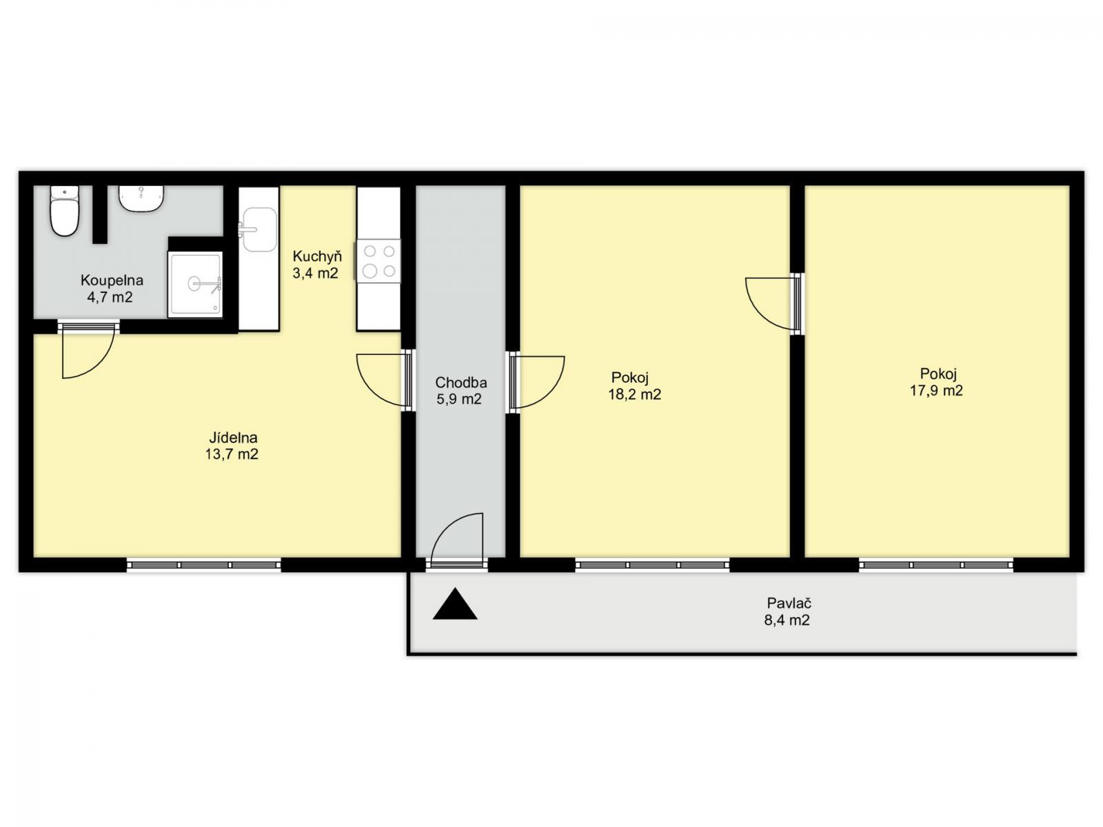
Dobrý den. Nabízím Vám k pronájmu prostor o dispozici 3+kk a rozloze 64 m2 na adrese Na Pobřeží 84, Kolín. Prostor je zkolaudován jako kancelář, tudíž zde není možné přihlásit trvalé bydliště. Prostor je vybaven kuchyňskou linkou včetně zabudovaných spotřebičů (elektrickou troubou, sklokeramickou varnou deskou a malou zabudovanou ledničkou). Součástí pronájmu je možnost využívat velice pěknou a zároveň klidnou zahrádku včetně venkovního i zastřešeného posezení. Dům je po kompletní rekonstrukci a je zabezpečen kamerovým a zabezpečovacím systémem. Měsíční nájemné činí 17.000 Kč včetně poplatků za energie. Prostor je maximálně pro dvě osoby. Při podpisu nájemní smlouvy se skládá vratná kauce 34.000 Kč, první měsíční nájem 17.000 Kč a provize kanceláři 17.000 + DPH. Celkem tedy 71.570 Kč Budu se těšit na případnou prohlídku.


