Prodej bytu, 3+1, 62 m²
Prodej slunného bytu 3+1, Kolín - Na Magistrále
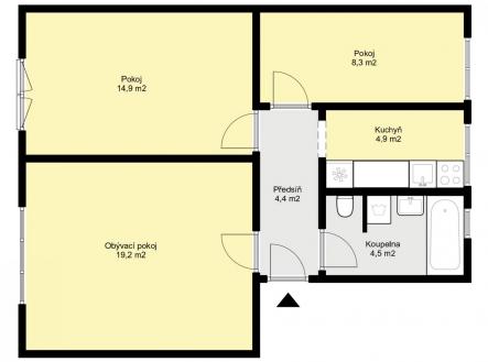
Nabízím ke koupi velmi příjemný a komplexně zrekonstruovaný byt 3+1 o výměře 57 m2, umístěný ve 4. nadzemním podlaží zděného domu v jedné z nejoblíbenějších částí Kolína u kolínské vodárny. Byt prošel před zhruba deseti lety celkovou rekonstrukcí, která zahrnovala nové rozvody elektřiny, vody i odpadů. Zároveň byly tam, kde to bylo možné, ponechány původní dubové parkety, které dodávají prostoru osobitý charakter a příjemné teplo domova. Moderní kuchyňská linka, dveře i podlahy jsou sladěny do jednotného stylu, a interiér tak působí čistě, útulně a připraveně k okamžitému užívání bez dalších investic. Samotný dům je zděný a prošel rozsáhlou rekonstrukcí pláště, díky čemuž dosahuje energetické náročnosti PENB C. Součástí nabídky je také zděný sklep, který poskytuje praktické úložiště pro sportovní vybavení, kočárek či sezonní věci. Lokalita je ideální především pro rodiny s dětmi v dosahu je známá kolínská vodárna s volnočasovými možnostmi, oblíbená via ferrata u rybníka Peklo, příroda pro procházky a sport, a zároveň kompletní občanská vybavenost včetně obchodů a služeb. Jedná se o místo, kde máte město na dosah, ale zároveň dostatek klidu pro pohodový rodinný život. Byt bude k nastěhování od 1. května 2026. Část vybavení může v bytě po vzájemné dohodě zůstat. Pro zájemce rádi zajistíme výhodné financování i pomoc při prodeji stávající nemovitosti. K inzerci je rovněž přiložena virtuální prohlídka, díky které se mohou zájemci pohodlně projít bytem ještě před osobní návštěvou.


