Prodej - dům/vila, 130 m²
Prodej rodinného domu 4+kk - 130 m2, Sendražice - Kolín
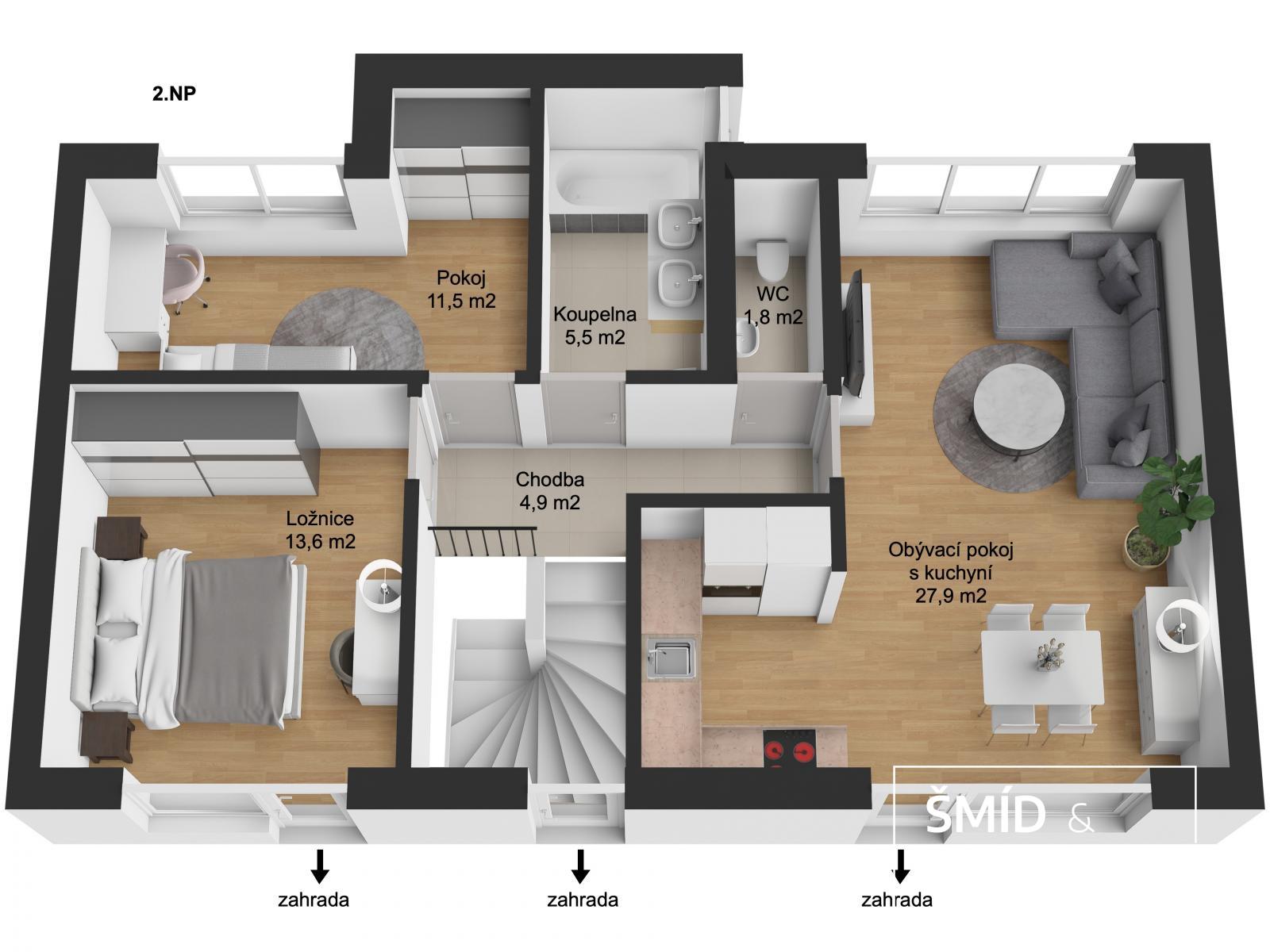
Dobrý den. Při podpisu rezervační smlouvy do konce června 2026 SLEVA 150 000 Kč na kuchyňskou linku nebo jiné příslušenství (například bioklimatická pergola). V exkluzivním zastoupení Vám nabízím moderní rodinný dům v klidné lokalitě, ale s výbornou dostupností do Kolína a Prahy. Mám pro vás jedinečnou nabídku! Řadový dům 4+kk o užitné ploše 130 m2 v nové rezidenční lokalitě Sendražice u Kolína s vlastním pozemkem 276 m2 a privátní příjezdovou cestou. Ideální kombinace pohodlí, soukromí a moderního bydlení. V rámci koupě si sami můžete vybrat obklady, podlahy a dveře, takže váš nový domov bude přesně podle vašeho vkusu. Kvalitní materiály použité při stavbě jsou samozřejmostí. Dispozice a vybavení domu: - Obývací pokoj s kuchyňským koutem a vstupem na zahradu - Tři další pokoje, z toho jeden samostatný pokoj v přízemí s vlastní koupelnou a privátním vstupem ideální pro návštěvy, hosty nebo drobné podnikání (salón, kancelář) - Velkorysý vstupní prostor, který vás překvapí - Podlahové teplovodní vytápění s plynovým kotlem, který zároveň ohřívá užitkovou vodu - Prostorná garáž a dvě parkovací místa před domem - Okna s trojskly, příprava na předokenní žaluzie a fotovoltaiku - Možnost individuálního výběru odstínů obkladů, podlah a dveří Lokalita: - Pouhé 2 minuty od zastávky MHD a blízké napojení na dálnici D11 (autem na P+R Rajská zahrada za 40 minut)) - Centrum Kolína do 8 minut autem - Klidná část obce s kompletní občanskou vybaveností - škola, školka, obchody a služby v blízkosti - Jste stále součástí okresního města, ale s rychlým přístupem k přírodě Řadovky Sendražice nabízí komfortní a moderní bydlení s možností nastěhování v krátké době, nízké provozní náklady, ideální kombinaci soukromí a dostupnosti. Těším se na případnou prohlídku


