Prodej - dům/vila, 102 m²
Prodej RD 3+1 ve Štítarech u Kolína
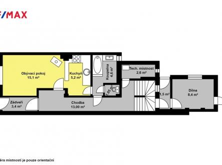
Dovoluji si Vám nabídnout k prodeji řadový dvoupodlažní rodinný dům v obci Štítary u Kolína. Zastavěná plocha domu je 78 m2, garáž 25 m2 a celková plocha pozemku činí 212 m2 včetně garáže. Dům byl celkově rekonstruován a kolaudován v roce 2002 a je o dispozici 3+kk s terasou, garáží, dílnou, šatnou, sklepem a půdou. Půdní prostory (46 m2), kde mohou být další pokoje nebo jiné využití dle vlastních představ. Vytápění je kombinovaným plynovým kotlem nebo krbovými kamny s průduchy. V dílně jsou kamna na tuhá paliva. Střecha je sedlová a krytinou je taška. Okna jsou plastová a dům je zateplen. Nemovitost je částečně podsklepena (18,6 m2). Na terase je nově opravená podlaha a nový majitel si může terasu dodělat dle svých představ. K nemovitosti náleží řadová garáž naproti vchodovým dveřím do domu. Garáž je po stavebních úpravách a plně funkční. Dům je připojen na elektřinu, plyn, obecní vodovod a kanalizaci. Na hranici pozemku se sousedem je napůl studna pro užitkovou vodu. Štítary jsou součástí Kolína, kde je i veškerá občanská vybavenost a do širšího centra je to cca 3 km a na zastávku MHD je 10 minut chůze od domu. Kolín má výbornou dopravní infrastrukturu. Vlakem do Prahy je to 40 minut a do Pardubic 20 minut. V případě zájmu o prohlídku nebo více informací mne kontaktujte.


