Prodej bytu, 2+1, 65 m²
Prodej bytu 2+1 v Kolíně
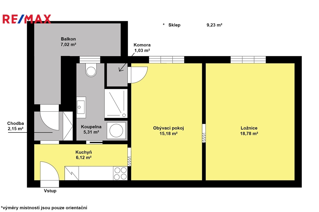
Dovoluji si Vám nabídnout k prodeji byt 2+1 s balkónem v osobním vlastnictví o celkové výměře 65 m2 včetně příslušenství (balkón 7 m2 a sklep 9,2 m2). Byt se nachází v ulici Havlíčkova v 3. NP z celkových 4 NP v cihlovém domě bez výtahu. Bytová jednotka prošla částečnou modernizací – plastová okna, plynová kamna v obývacím pokoji GAMAT a kompletní rekonstrukcí koupelny s toaletou včetně rozvodů v roce 2023. Součástí bytu je kuchyňská linka včetně spotřebičů (plynový sporák s elektrickou troubou, digestoř) vestavěnou skříň na chodbě, velké skříně v ložnici do tvaru L, skříňky a zrcadlo v koupelně, věšák na chodbě. Vytápění je lokální plynové a ohřev vody je bojlerem. Měsíční náklady včetně energií pro tříčlennou rodinu jsou 5 200 Kč. Před domem je autobusová zastávka směr Kutná Hora a 3 minuty chůze od domu je MHD směr do centra města. V místě je kompletní občanská vybavenost. Vhodné i jako investiční příležitost. Byt je možné koupit na hypotéku, kterou Vám rádi pomůžeme vyřídit. V případě zájmu o prohlídku nebo více informací mě prosím kontaktujte.


